查看完整案例

收藏

下载
英泰苑Ying Tai Court巧用中轴线条划分场域,构建回游动线。以浅色系为主,引中式美学渗入现代简约,加持界面视觉,通透空间。游走城市,以“家”为归属地,谱写温馨…The center axis strip is skillfully used to divide the field and construct the loop line. Mainly light color system, leading Chinese aesthetics into modern simplicity, enhance interface vision, transparent space. Roam the city, take "home" as the place of belonging, compose warmth...
01客厅/Living Room
全屋采用无主灯设计,拉伸层高。浅色墙面携大块地砖,与窗外光源产生联动,为区域营造通透与大气。The whole house adopts no main lamp design, stretching storey height. Light-colored walls with large floor tiles are linked with the light source outside the window to create transparency and atmosphere for the region.选配浅灰沙发,低调而优雅,磨砂黑茶几干练沉稳,摒弃喧宾夺主的姿态,为清爽色调装点时尚感。Choose a light grey sofa, low-key and elegant, ground sand black tea a few able and composed, abandon the posture of overwhelming guest to dominate, for relaxed tonal deck fashion sense.
电视背景以自然肌理跃动区域,亚克力玻璃材质与软垫合成独立靠椅,低矮造型与茶几,电视柜形成平稳过渡,令艺术美感呈现具体,打造飘逸轻盈生活区。The background of THE TV is bounded by natural texture. The independent chair is composed of acrylic glass material and soft cushion. The low shape, tea table and TV cabinet form a smooth transition, making the artistic aesthetic feeling concrete and creating an elegant and light living area.02餐厅/Dining Room
浅木色长条柜设为隔断墙,有序平整的外表藏匿强大收纳功能,精准定制板材实用性,齐整线条语言,与客厅和谐相映。Light wood color strip cabinet is set as partition wall, orderly and smooth appearance hides powerful storage function, precise customization plate practicability, neat line language, and living room harmony.金属桌角支撑石纹面板,对应星光吊灯,深色皮质餐椅,迎合居者对内敛空间的品质追求,Metal table corners support stone panels, corresponding to starlight chandeliers, dark leather dining chairs, to meet the quality pursuit of interior space.
金属桌角支撑石纹面板,对应星光吊灯,选配深灰皮质餐椅,迎合居者对内敛空间的品质追求,由精致承载温情。Metal table corner supports stone panel, corresponding to starlight chandelier, matching dark gray leather dining chair, caters to the quality pursuit of interior space, by delicate bearing warmth.
氛围光倾洒石纹桌面,柔和照明领略随性纹理的刚柔粗细,觥筹时刻传递温情,尽享其间美好致趣。Atmosphere light on the stone table, soft lighting to appreciate the hardness and softness of the texture, conveying warmth at all times, enjoy the beauty of the meantime.03厨房/Kitchen
开放设计的U型厨房,沿用客厅、餐厅的大块浅色地砖,统筹功能区的和谐整体,为人文生活制造情感共鸣。The Open u-shaped kitchen uses the large light-colored floor tiles of the living room and dining room to coordinate the harmonious whole of the functional area and create emotional resonance for human life.
哑光白岩板台面与柜体色调统一,利落简约,折射自然光线,敞亮空间,将柴米油盐幻化为美好生活的灵动气息。Matte white rock board countertops and cabinets are in uniform color, neat and simple, refracting natural light, open and bright space, turning firewood, rice, oil and salt into a beautiful life.
04主卧/Master Bedroom
主卧以大面积白墙领衔区域,任由昼夜表达冷暖光阴,留予生活掠影演绎更多色彩可能性…The master bedroom is led by a large area of white walls, allowing day and night to express warm and cold time, leaving more color possibilities for life.
浅木色地板铺陈成排休息区,靠墙格栅立面以流畅线条延伸空间旋律,充分凸显极简质感美学,以舒适静谧忘却凌乱思绪。A row of rest areas are laid out on the light-wood floor, and the smooth lines of the wall grille facade extend the melody of the space, fully highlighting the minimalist aesthetic sense, and forgetting the messy thoughts in a comfortable and quiet way.
床头柜摆放简约花饰,氛围灯绕于床边,勾勒一处有品领域,以温柔语言陪伴睡眠,营造安宁惬意。The bedside table is decorated with simple flowers, and the atmosphere lamp is around the bedside to outline a quality area, which will accompany you to sleep with gentle language to create peace and comfort.05功能室/Functional Room
场域设计以三房一体的联动合并,为人与环境创造切换自如的互动性与独立性。The design of the field combines the three rooms in one, creating the interactive and independent switching between people and the environment.共享领域的大面积柜体支撑收纳功能,运用隐藏式推拉门作为隔屏,两边封闭自成一区,为功能领域创造灵活布局。The large area cabinet supports the storage function of the shared field. The hidden sliding door is used as the screen, and both sides are closed into an area, creating flexible layout for the functional field.
敞开推拉门,打破休息空间的界限隔断,展现中式对称之美,光感与通透一览无遗,紧密“家”与“人”的情感联系。Open the sliding door, break the boundary partition of the rest space, show the beauty of Chinese symmetry, light sense and transparent take in everything in a glance, close emotional connection between "home" and "people".
06次卧/Living Room
次卧与主卧微调对称布局,选配柔软浅灰床体,营造典雅与稳重气质,表达对家中长者的敬意。Second lie and advocate lie fine-tuning symmetrical layout, match soft shallow ash bed body, build elegance and sedate temperament, express the respect of the elderly in the home.
床头摒弃多余物件摆设,为有限区域腾出自在空间,便于长者怡养身体,平和心境。The head of a bed slam the door redundant thing is furnished, vacate comfortable space for limited area, facilitate elder happy raise a body, peaceful mood.
生活阳台作为中间区,隔离长辈房与外界的直面冲击,化身“感官护卫”,于冬季削弱寒冷,于夏季阻挡酷热,营造“净土式”舒适领域。The living balcony serves as the intermediate area, separates the elder room and the external face impact, incarnate "sense guard", weakens cold in winter, blocks hot in summer, builds "pure land type" comfortable domain.07沐浴室/Bathroom
浅灰色碎纹墙面为浴室唤醒活力,入墙式花洒精简画面,细腻水流洗净内心繁杂思虑,驱散困乏与疲倦。Metope of shallow gray broken grain awakens vitality for the bathroom, enter wall type flower to asperse concise picture, exquisite current washes clean heart multifous think about consideration, disperse sleepy and tiredness.
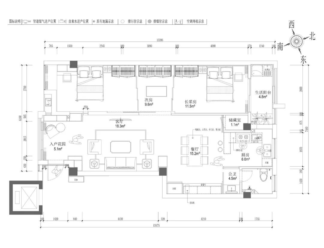
项目运用浅多深少的色彩基调,划分井然有序的材质布局,构筑屋主对简约秀逸的空间诉求,规划区间功能性,融合温馨气韵,打造“理想之家”的美好境地。The project adopts the basic color tone of light, more dark and less dark, divides the orderly material layout, constructs the owners space appeal for simple and elegant, plans the function of the interval, integrates the warm atmosphere, and creates the beautiful situation of "ideal home".▼平面图 | The Plan▼
项目名称 | 英泰苑Project name | Ying Tai Court设计机构 | 远校空间设计Design Firm | YUANXIAO Space主案设计 | 余远校Interior Design | Yu YuanXiao参与设计 | 邵瑞环 余泽娇 余卓毅Interior Design | Sao RuiHuan项目地点 | 中国 澄海Location | Shantou,China设计面积 | 103㎡Design Area | 103 sq.m.设计时间 | 二零二一年六月Design Time | June 2021
量身订造品味美学精神空间Tailor-made Taste Aesthetic Spirit SpaceYUANXIAO SPACE DESIGN远校空间设计成立于2017年,我们一贯坚持“美学、专业、梦想”的理念。专注售楼中心、样板间、高端私宅、别墅 、办公室、酒店等领域,为客户提供全案设计及顶级定制服务。
客服
消息
收藏
下载
最近





























