查看完整案例

收藏

下载
小宅空间
Sara Mikhailova
新作,24
㎡小
公寓
,业主是一位年轻女孩,游泳运动员。功能性、宽敞性、不寻常——这就是在公寓设计中所追求的目标。尽管镜头不多,但还是设法创造了一个舒适的环境,可以进行改造以适应不同的生活场景。
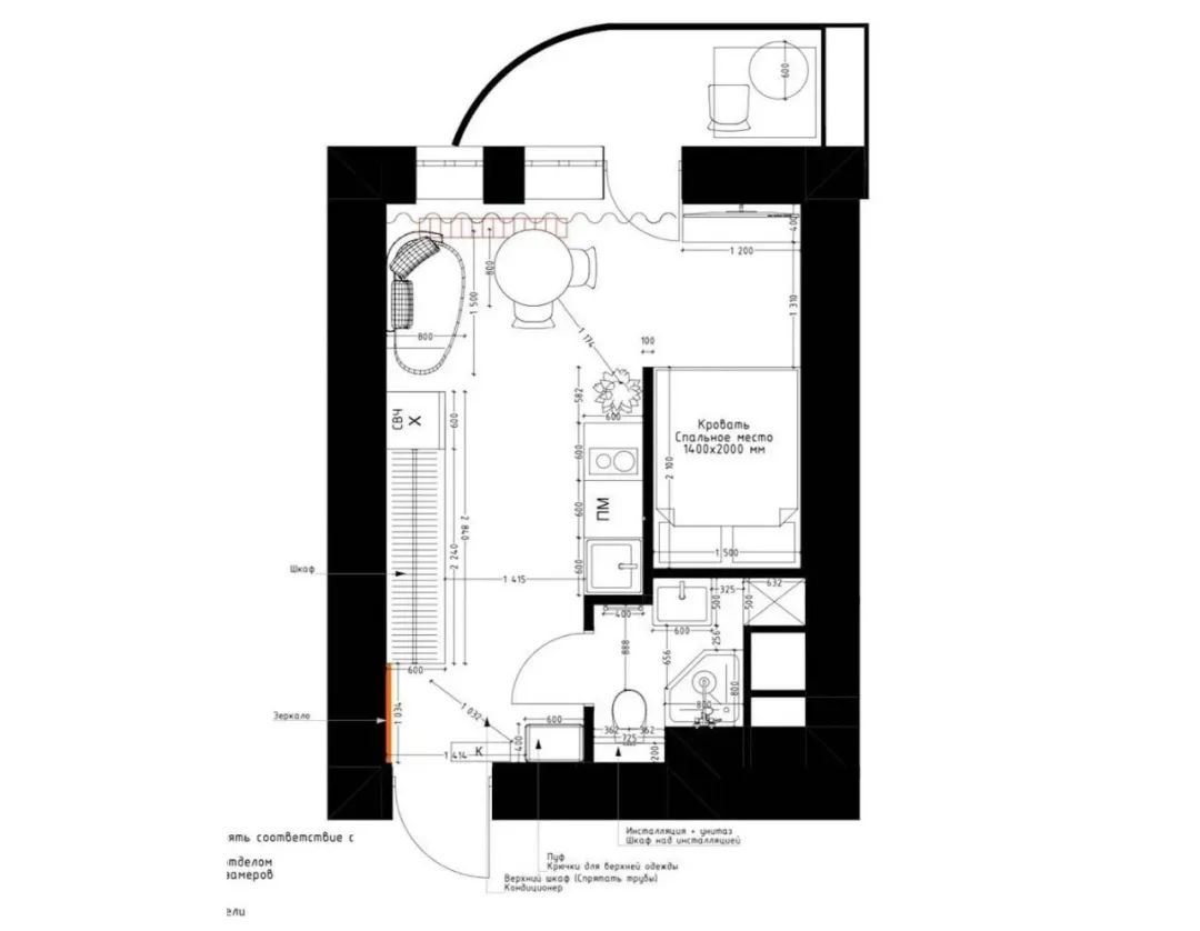
平面布局
▽
入口处分配了浴室和储物系统,起居区分为厨房、客厅区和玻璃块隔断后面的卧室。女孩希望将现代性与历史氛围结合起来,以新古典主义风格为基础,并用强调细节来淡化。在入口处,放置了一幅立体派风格的弗朗兹·莱福特肖像画,这幅画包含了室内的主要色彩。
厨房是步入式的:沿着一面墙有一个食物准备区,另一面墙是存储系统。上面的柜子被开放式的架子取代。明亮的走廊过渡到更加中性和平静的生活空间,墙壁上刷着油漆,地板上铺着人字形镶木地板。
客厅有两种场景:
一种选择是带有沙发和小桌子的用餐区;第二种选择是带沙发和咖啡桌的休息区。
卧室设置在一个用玻璃块建造的壁龛中,让光线进入,让空间变得更有趣。床头板上方放置了一个壁灯,提供舒适的照明。
浴室虽然紧凑,但非常舒适。淋浴间采用织物窗帘的结构风格,以免占用空间。
客服
消息
收藏
下载
最近
















