查看完整案例


收藏

下载
当我们称赞一座房子美时,
我们其实在说,
喜欢这座房子呈现出来的生活方式。
——阿兰·德波顿
项目类型 | 平层空间
项目设计 | 林金龙
项目概述 /
Project overview
家作为充满爱意的地方,有无数的语言形容。但构建家的方式,却要依据主人的趣味、习惯、情绪以及置身其中的氛围。
本案位于万力时代,面朝碧云峰森林公园,设计师充分考虑业主需求,以简约而精致方式展示现代都市生活的高品质与时尚。
CHAPTER 1
客厅丨空间
自由纯粹、舒适惬意
—
LDK一体化设计,开放的氛围让空间更加自由。
简约的线条于横纵间构建稳定与秩序。
从生活状态及空间本身出发,让空间回归纯粹,自然而然散发舒适惬意。
将阳台纳入客厅打造观景茶室,开阔空间的同时增加了空间的功能性。
落地窗将室外美景引入室内,悄然拉进人与自然之间的距离。
光影绰约、茶香浮动,于时光的褶皱中静品生活,体会一茶一世界。
CHAPTER 2
餐厅丨空间
温润含蓄、清新灵动
—
纹理清浅的岩板餐桌与皮质餐椅,于不经意间散发出生活的温润与含蓄,将调性与质感展现得淋漓尽致。光影在不同材质上跳跃,为空间带来了几分灵动。
“人莫不饮食也,鲜能知味也”,酸甜苦辣既是舌尖的感受,也是人生的体验。
软装设计增加空间的点睛亮色,增加餐厅的氛围感,让人感受到治愈的人间烟火气。
CHAPTER 3
卧室丨空间
简约高级、慵懒清新
—
星辰夜影窗间落,江海秋潮枕上生,
简约舒适的卧室环境赋予空间温馨的氛围,让人的心得到安宁。
窗外美景、光影婆娑,无论是睡眠还是小憩,都不失为一个好地方。
次卧以干净通透的白色为主色调,赋予空间清新慵懒的氛围。无主灯与床头灯的搭配设计,空间简约的同时而不失层次感。软装饰品打造洁白无瑕的睡眠氛围,让人一夜好梦。
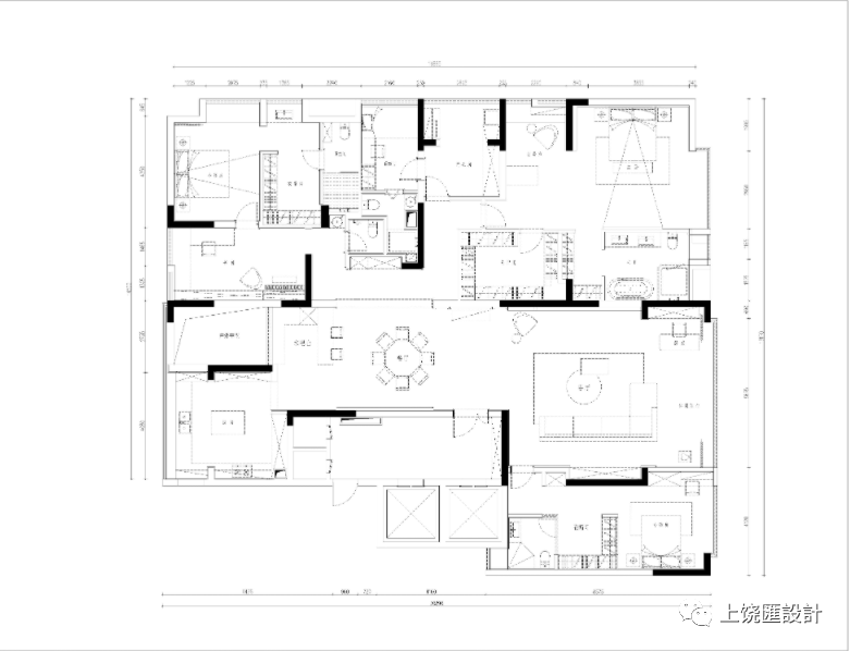
▼平面布置图 / PLAN
项目简介/ Brief Introduction
Location / 项目地点:万力时代
Type / 项目类型:平层空间
Area / 项目面积:314㎡
Design / 设计出品:上饶市壹空间装饰设计有限公司
Project / 全案设计:林金龙
Time / 完工时间: 2023年7月
落地出品人 / Designer: 林金龙
设计师 | 林金龙
上饶市壹空间装饰设计有限公司
客服
消息
收藏
下载
最近























