查看完整案例


收藏

下载
对于三口之家而言,实用于美观性之间的平衡是十分重要的。除此之外,屋主对舒适性十分注重,希望有大的公共区域,让一家人有充分的空间去陪伴彼此。我们大胆的牺牲一间房,换来了更加开阔的客厅、餐厨尺度。
设计并不是非此即彼的刻板印象,而是有着极强的包容性,我们在现代简约中融入中古的元素,化繁为简,以简驭繁,达到一种特定的平衡,不仅得到简约的视觉效果,更得到了舒适的生活体验。
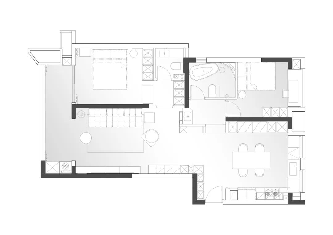
空 间 · 规 划
左右滑动查看平面
INFO
项目地址︱融创临江府
设计类型︱毛坯装修
项目面积︱110㎡
设计风格︱中古混搭
项目设计︱武汉咫尺空间设计
这是进门后第一眼看到的景象,拱形门洞为家奠定了柔和的基调,更远处的黑色挂画,如黑洞般将目光吸引到更远的地方。
左侧的玄关柜与之呼应,在尝试过众多比例后,最终确定了现在两处镂空填黑的造型,让整面鞋柜更加简约的同时,多了几分俏皮可爱。
拱形门洞旁的玻璃展柜,是十分吸睛的亮点。
我们根据屋主的收藏品设置了不同高度的层板,深色木纹有着独特的质感,极窄嵌入式线性灯带更是将高级感烘托到极致。
客厅本就有着明亮的光线,我们想突出这种视觉观感,大面积米白色艺术涂料+暖色灯光,无形中烘托出家的温馨,柔软的绒布面料勾勒出柔和的亲切感。
电视这面原本是一面超长墙体,如何将电视墙与西厨柜合理规划且不显突兀是一大难点。在比例分割上,因为客厅包含了通往主卧的过道,西厨柜便与此对应,无形中划分了空间。
西厨柜与电视墙交接处十分重要,将侧板切成斜面,过渡更加自然,点亮一盏灯,温暖且宁静。
沙发旁的造型墙体十分独特,这里其实是干区,这种创新的造型打破了空间之间的壁垒,消弭了沉重的体量感,使空间更加柔和温润,视线的延伸正是空间显大的关键。
用木色作为开放式餐厨的主色调,绿色中古餐椅成为空间点缀,纯净温暖的配色,使人更容易放松下来。
不规则的实木桌面,复古中带有些许禅意,这里不仅是用餐的地方,也可以作为品茶区,或辅导孩子作业的地方。
Z H I C H I D E S I G N
- 2022年 -
2022阿里巴巴每平每屋设计挑战赛top300
2021-2022年广州芒果奖全国TOP100:云梦台
2021-2022年第九届立邦“未来之星”青年设计师TOP30
2021-2022年上海国际设计周新锐设计奖:W小姐的家
2021-2022年第一届阿里巴巴寻找国民好设计TOP30
2022年-2023年上海国际设计周新锐设计奖
2022-2023年城市设计星南区50强
金堂奖2022年度杰出作品奖:W小姐的家
2022年度金堂奖【湖北十佳设计师】
2022-2023年上海国际设计周新锐设计奖(年度城际榜)
WYFD2022年度(大中华区)100大杰出设计青年
2022年金岸奖 全国优胜奖
- 2021年 -
2021金堂奖-优秀住宅公寓空间设计奖
2021我要去米兰-中国设计力青年榜武汉Top10
2021金住奖-中国(武汉)十大居住空间设计师
2021-40UNDRE40中国(武汉)设计杰出青年
2021芒果奖-中国住宅优胜奖
2021未来空间智装营-未来空间智装师Top10
2021上海国际设计周-新锐设计奖城际榜
2021第九届‘未来之星’青年设计师全国三十强
2021第九届立邦“未来之星”青年设计师大赛全国三十强(住宅组)
- 2020年 -
2020芒果奖-中国住宅优胜奖
2020-40UNDRE40中国(武汉)设计杰出青年
红棉中国设计奖-2020室内设计奖
好好住-2020营造家华北赛区Top100
她设计奖-2020年度优秀软装设计奖、
2020“自然 共生”G+设计精英大赛全国Top100
M+中国高端室内设计2020武汉“头号设计师”
2020PCHOUSE AWRED全国BEST100杰出设计机构
2020设计本最佳软装搭配、最佳别墅/豪宅空间奖
客服
消息
收藏
下载
最近















