查看完整案例

收藏

下载
前言
THE PREFACE
本案毗邻红莲湖公园,室内三层结构600平左右,俯瞰公园全景,推窗即享鲜氧时光。文人墨客的业主,有非凡见闻和深厚文化底蕴,希望自己的家自然、与众不同,极为重视生活品质。前期通过公开招标的形式,希望找到一位专业创新、时尚有阅历的设计师,孟总监以独特创意思路拔得头筹,设计方案最终得到业主高度表扬!
设计大胆的孟总监遇上要求超高的书记,会擦出怎样的火花呢?
三层结构原房户型有10间以上的卧室,做为4口之家大多闲置。
孟总监将三层打通,加装透明观光电梯,打破原有的居家思维,重新规划布置格局,留有更多的休闲和互动空间,卧室以套房为主。
回家总是给人回到某个“内部”的感觉。但本案打破室内和室外的界限,一家人既有各自独立的生活空间,又将奇幻书屋、健身房、影院、攀岩、景观、阳光与自然搬进了家。
!
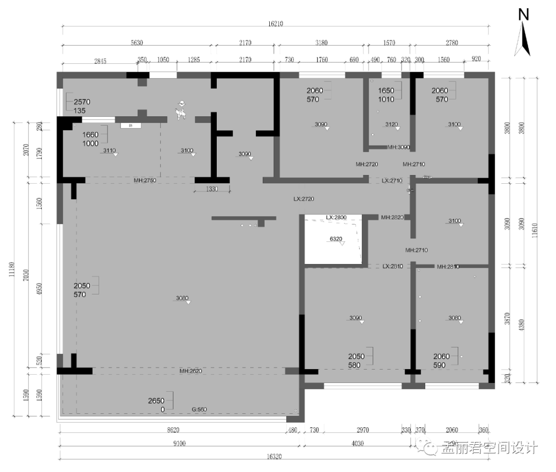
原房一层
原房二层
原房三层
一层定稿平面
一层定义为居住层,客厅与餐厅厨房全开放,玻璃观光电梯融入整体设计,在乘坐电梯的时候提供现代的视觉效果。主要为女主人和孩子的生活空间:主卧为双开门观景大套房,超大衣帽间及卫生间;小女儿房、客卧、琴房。
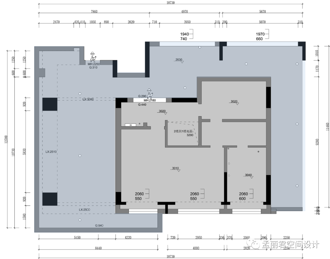
二层定稿平面
二层打造创意独特的家庭书房,弧形为主,自楼顶打通做采光天井,抬头就可以看到满天星辰。
空间共享又各自独立,随性舒适,随处可阅读,既是书本也是装饰,让书香萦绕在家里的每个角落。
阅读或工作之余,抬眼便可欣赏到窗外的风景。
南侧为男主人的观景大套房,北边客卧及收藏室
。
三层定稿平面
三层做为休闲功能:孟总监对三层室内全拆除,阶梯式影院、健身、攀岩区,足不出户也能玩的尽兴,满足每个家庭成员的需求。
室外梦幻的空中花园:鱼池水景、葱绿植被、水吧简餐、露营烧烤……
露台的“偷光设计”,光线照射到二层,用自然光线连接了上下各层空间。
书屋部分设计
客服
消息
收藏
下载
最近












