查看完整案例

收藏

下载
你当像鸟飞往你的山
You should be like a bird flying to your mountain.
Interior & Decoration Design
YUANZHU DESIGN TEAM
Tianjin, China
2023
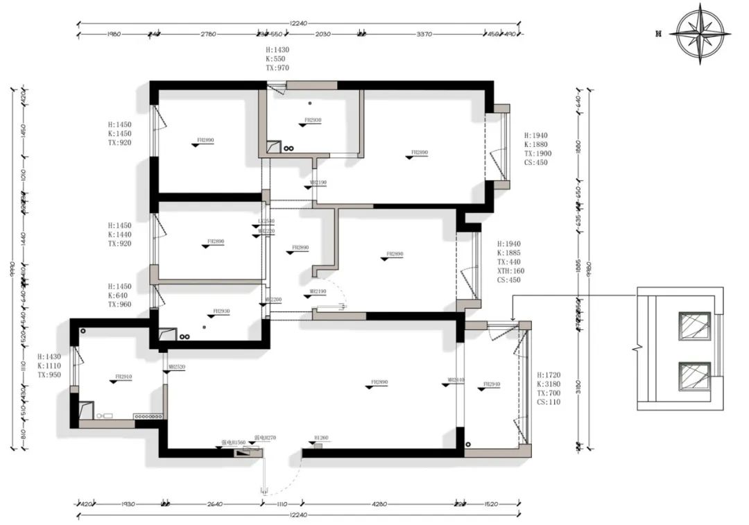
平面图
Area / 面积:108㎡
Style / 风格:极简奶油
Type / 户型:平层
Design / 设计:原筑空间 崔小松设计组
Address / 地址:天津 · 滨海江来
01. Porch
YuanZhu Design
玄关
加入格栅
作为背景装饰,空间更具层次感,更显高级。
鞋柜中部和底部留空或穿插设计,增添呼吸空间,柜体更加爽利大气。
留空区域中安装嵌入式灯带,局部照明视觉增强了立体感和氛围感。
02. Living Room/Dining Room
YuanZhu Design
客厅/餐厅
客餐厅一体化让光线与空气交织流通,视觉效果上更加开阔。
客厅将阳台融入室内,扩大可用面积。视觉上看起来更加通透显大。
。
打造通顶柜,满足客厅收纳的同时还兼顾颜值。
03. kitchen
YuanZhu Design
厨房
L型橱柜满足洗菜▶️切菜▶️炒菜▶️。
吊柜满足收纳空间。
油烟机利用柜门遮挡,更美观,看起来也更加协调。
04. Bathroom
YuanZhu Design
卫生间
主卫
客卫悬挂式浴室柜,美观大方,底下悬空的设计没有卫生死角,还能收纳,贴墙无缝安装,不易藏污纳垢。
05. Bedroom
YuanZhu Design
卧室
床头半墙
+
床铺一体设计,底部镂空,视觉上空间十分轻盈,无压力。
衣帽间
暖白色的柜体做通顶设计,靠窗区抬高做地台,这里就是静坐冥想的精神天堂。
收纳柜+梳妆台的组合形式,兼具多重功能
。
编藤床的添加给极简的空间增加了一丝复古调,搭配绿植让房间内更显灵动
。
客服
消息
收藏
下载
最近




















