查看完整案例


收藏

下载

翻译
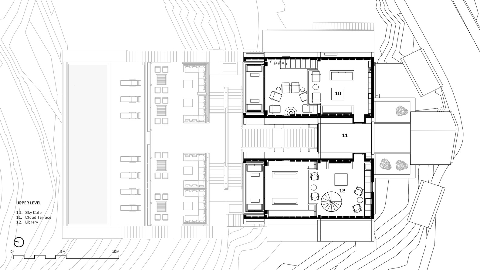
- The ‘Meet and Greet” building of Kavya Resort is sculpted to witness the drama of passing clouds. Placed in the highest resort in Nagarkot, Nepal, the site experiences a dynamic moment of clear visibility, suddenly changing into total obscurity. While the two rock-shaped volumes are oriented to capture views of the Himalayas and the valley below, their separation creates the passage for the clouds – sometimes bringing the fog and moisture deep inside the building. Here, you can experience the magical moments.
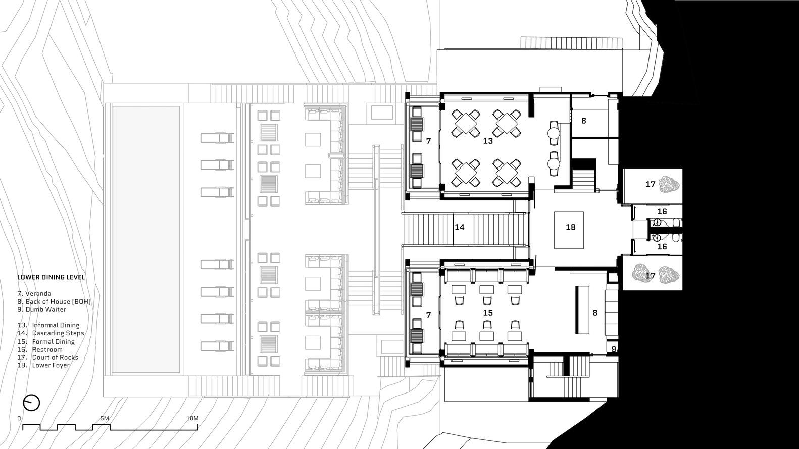
- Learning from the local village houses built on steep terrains, the footprint of this building is kept to a minimum. The interior spaces are stacked and organized vertically in two ‘rock’ '-like volumes. A central circulation spine, the axis with the mountain range, interconnects them. This gesture allows nature to punctuate and scale the volumes while opening the interior spaces to views and ventilation. The main level hosts welcoming areas with attached attic-like spaces for a cloud café and library. The lower levels incorporate dining rooms right above the main kitchen. From here, cascading steps connect the alfresco area and then the pool terrace.
- Inspired by local geology, the architecture offers diverse experiences, from the crevasse-like circulation hallways and the cave-like gathering rooms to promontory-like verandas overlooking the mountain range.
- Shaped to respond to the local climate, seismic forces, and the views, every side of the building looks different. The side facades are dominated by reinforced concrete shear walls with punctures in dormers to allow the southern sunlight. The entry facade that hides the ‘back of house’ functions constitutes a cluster of village houses with smaller fenestrations. In contrast, the back façade facing the view, the building transforms its appearance into a telescopic form, jutting out towards the valley. Here, the facades are open and transparent.
客服
消息
收藏
下载
最近

























