查看完整案例

收藏

下载
项目信息
/
地址:璟宸府
城市:中国 杭州
户型:复式
面积:160㎡
风格:现代原木
设计施工:浙江南鸿装饰
本案选择了白、灰、原木等包容性强的颜色作主基调,简单又有层次的装饰元素,将设计所要表达的本真情怀展现得充分。清爽利落的明朗视野,深浅色彩的和谐搭配,构造出静谧优雅的质感美学。
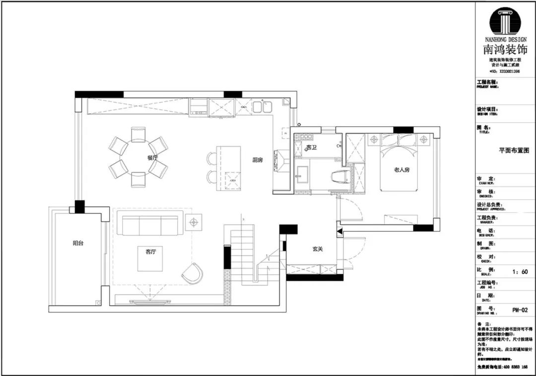
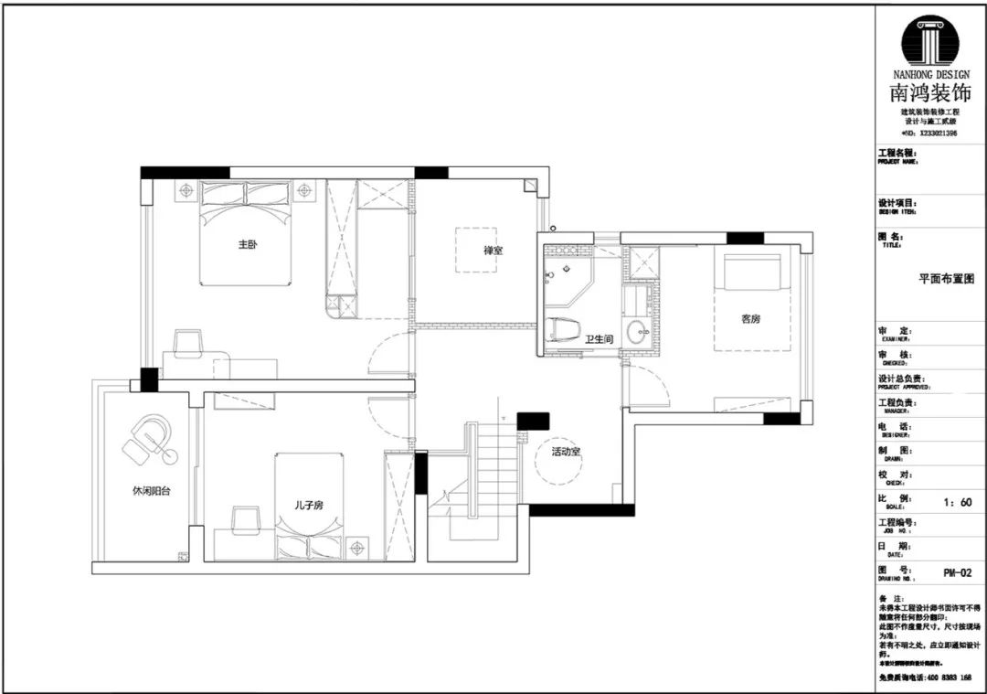
#项目户型
设计改动
/
▪餐厨做开放式设计,宽阔空间带来更强的互动体验。
▪厨房加入岛台,实用性更强。
▪楼梯用深色的台步与墙面形成反差,并在台阶下留出白色小窄条,缓解空间沉闷。
▪卧室内原书房改造为开放式衣帽间,纯色无拉手提升柜子的颜值与格调。
No.1
客厅
自由开放的客餐厨一体式布局,将区域间的边界抹除,强化家人的情感交流,丰富居者的生活方式。
软装上选择素色沙发搭配深色玻璃质感茶几,气质低调内敛。
平实的顶面做无主灯设计,背景墙则整体留白,干净的底色不染纤尘,悬浮的体块增强空间通透感,整体的调性高度统一。
设计用最简洁纯净的气质,给予了居室当下生活所最需的治愈能量。
屋主平时还有养鱼的爱好,设计师便将相应设备嵌入到电视侧面的墙体中,刚好能做一个趣味的小景。
No.2
餐厅
餐厅做整面的原木柜增加公区收纳,柜体延伸至厨区,视线连贯性强,整体的动线和功能设计也更为合理。
圆桌的形式可以节省空间,而纯白色的外形相比一般的岩板餐桌来说,也更能烘托恬静的氛围。
No.3
厨房
开放式厨房选择了灰色的百搭调,厨电嵌入柜体,呈现整洁优雅的质感。
岛台也成为了餐厅与厨房的连接点,延续用餐功能的同时,又加强了厨房和餐厅的联系。
整体色系用咖色、木色和简约的灰色做搭配,沉稳且耐看。
No.4
楼梯
楼梯使用深色的踏步,与墙面就有了一个反差,让空间不会显得单调。
另外,设计师在踏步下也进行了留白,再搭配玻璃材质扶手,为空间留足了呼吸感。
No.5
主卧
主卧保持素雅的搭配,营造恬静放松的助眠氛围。
睡眠区与衣帽收纳区的隔断,利用原木双面柜代替了原本的墙体,圆弧的处理让视线过渡流畅自然。
No.6
儿童房
儿卧设计上,我们希望既能塑造出独立自主的一面,又能搭建起足够的趣味感。
背景墙以白灰色块的组合丰盈了层次,传递时尚的活力。孩子的学习书桌椅放在床侧,日常学习休闲两不误。
客服
消息
收藏
下载
最近


























