查看完整案例

收藏

下载
小宅设计
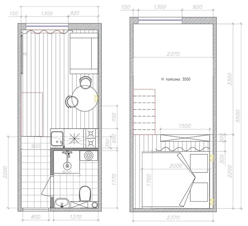
designcorner.spb新作,13㎡小单间公寓,这里需要放置厨房、用餐区、客厅、卧室、浴室和存储系统。这似乎几乎是不可能的,但高高的天花板有所帮助,设计师成功地在第二层安排了一个睡眠区。
空间布局
▽
看到这个内饰,你应该感受咖啡馆和博物馆的氛围。室内的配色方案是与灰色有关。存储系统是最难的部分,这就是为什么在走廊区域想到了制作一个金属栏杆,可以在上面挂足够多的衣服。
厨房套件包括小型内置冰箱、微波炉、两个燃烧器的炉灶、上方的通风装置和水槽。附近有一张小餐桌和两把椅子。对于饰面,使用标准材料:油漆、层压板、聚氨酯灰泥。
浴室配有淋浴、小水槽、带装置的马桶,壁挂式迷你洗衣机。设计师提供了非常简单快速的水管和通讯通道,这些通道隐藏在时尚的门后面,让人想起老房子窗户上的意大利百叶窗。
客服
消息
收藏
下载
最近


















