查看完整案例

收藏

下载
项目详情
设计单位:宿然设计事务所
项目地址:红谷一品
项目面积:
116
㎡
▼序言
FOREWORD
房屋居住人口结构:夫妻
客户需求:
客户是旧房改造,原始房屋已经住了挺长时间,这次打算重新敲掉装修,作为婚房使用。房子的装修风格主要由女主人决定,女主人很酷,喜欢暗黑风,希望复式复古中又不失温馨。男主人的要求就是可以有自己打游戏的空间,所以我们把书房设计成了兼电竞房,可以满足小两口两人同时开黑。
▼平面布置
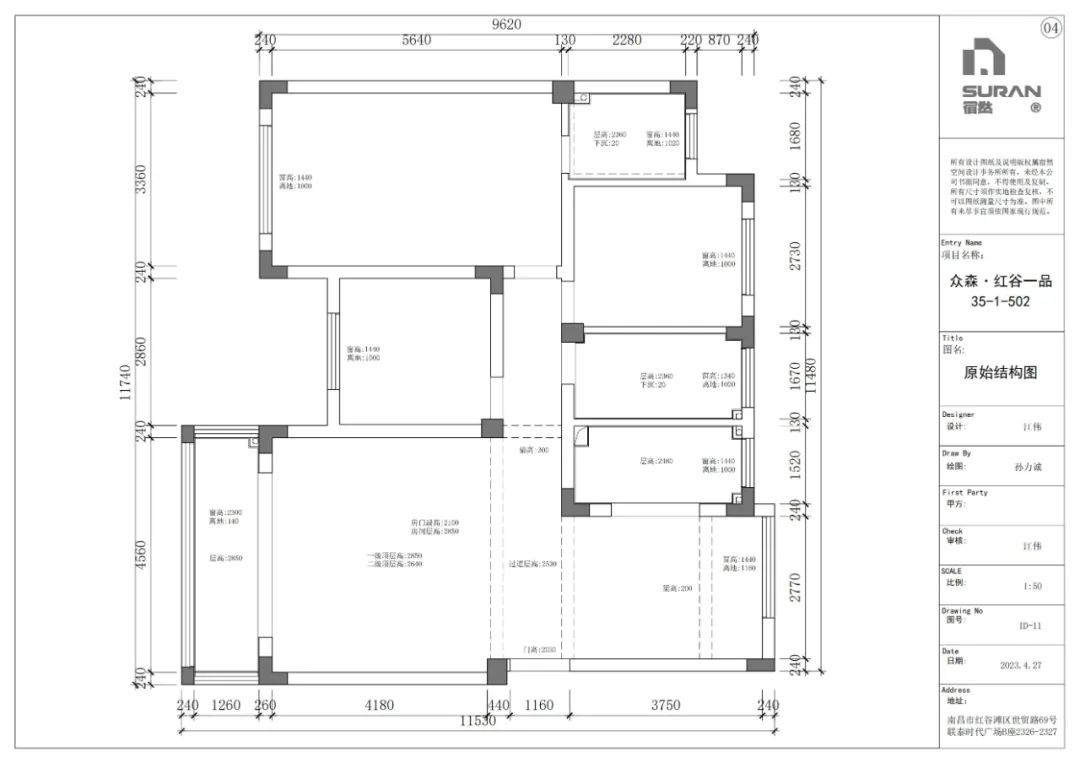
改造前的平面图
优化后,我们把餐厅,阳台都打通,使得空间更加开阔通透。借用书房的部分位置,做了电视背景墙的收纳柜。公共卫生间改成了干湿分离的形式,厨房设计成了开放式。
▼玄关实景
玄关用的是长虹玻璃+镂空设计,这样就不会影响通风和采光。
旁
边再搭配一个小斗柜,可以放置男女主人收藏的玩偶手办,一回家就可以看到自己喜欢的东西,很治愈。
▼客厅实景
改造后效果,客厅把阳台打通,和餐厅连接在一起,显得空间更加开阔通透。
电视背景墙虽然做了很多收纳空间,但一点也不呆板,因为做了有露有藏的设计,下面再用宝格丽岩板过度,显得空间高级又有层次感。
沙发背景墙做了一整面的收纳柜,家里的日常杂物,生活用品都可以收纳进去。考虑到打理问题,全部做成了封闭式,以免落灰,为了不使得整面收纳柜显得呆板闭塞,中间做了磨砂玻璃穿插设计,空间有层次感又灵动。
为了享受午后的好阳光,窗帘设计成了日夜帘,洗衣机和烘干机也设计在这里,伴着阳光做家务,是件幸福治愈的事儿.......
▼厨房实景
▼餐厅实景
餐厅设计了西厨,起到水吧台作用的同时,餐厅的收纳储物也满足了。
▼卫生间实景
主卫只有3.6平,为了让这个小卫生间用的舒服,看的不拥挤,设计了悬空式台盆,壁挂马桶,半隔断玻璃淋雨隔断,满足使用功能的同时,方便打扫,空间又不闭塞。
公共卫生间改成了干湿分离的形式,结合客户的生活习惯和喜好,设计了蹲坑的形式,墙面拼色墙砖,地面马赛克地砖,营造一种法式复古的感觉。浴室柜设计成了悬空式,方便打理的同时显得空间也不会闭塞。
▼主卧实景
改造后的效果,虽然没有单独做衣帽间,但卧室的收纳面积相当于一个衣帽间。为了让房间更通透,收纳柜做了镂空设计,这样卧室的通风采光都会更好,平时穿了不需要洗的衣服,也可以挂在这里作为次挂衣区。
为了让空间更有层次,同时呼应法式暗黑风的感觉,柜体设计了拼接设计,五金也搭配了金色复古的金属把手。
▼书房实景
书房是兼电竞房使用,可以满足同时两个人开黑,后面整面储物柜,可以摆放装备和零食。
▼设计小组
关于设计:让最专业的人做最专业的事,各取所长,金无足赤,人无完人,每个人都有自己最擅长的领域,我们拥有多名优秀的设计师,每个人本就各有所长,无论北欧、日式、现代简约、轻奢,还是台式美式新中式,无论是视觉,灯光,色彩,还是软装,我们摒弃了传统设计模式以设计师级别收费的方式,每一套方案,都由整个团队协作完成,每个人做自己最擅长的项目,整个团队共同运筹帷幄以达到最完美的效果。
【宿然】专注设计还原!
扫码添加客服
您好,这里是宿然设计。
如有任何装修设计方面的问题欢迎咨询我们
客服
消息
收藏
下载
最近
























