查看完整案例

收藏

下载
江灣南岸
HOMES 2023
項目名稱:
江灣南岸
設計單位:TRID添睿設計
建築面積:140㎡
項目地址:廣東省 惠州市
主 材:石材、木飾面、不銹鋼、藝術肌理漆、仿大理石瓷磚、烤漆板、長虹玻璃、墻布、乳膠漆。
設計需求
重新裝修:
①有老人和兩個小孩,各自需要房間。
②原先廚房太小,希望空間大一些。
③客廳需要一臺鋼琴,希望鋼琴區域也是一塊展示區。
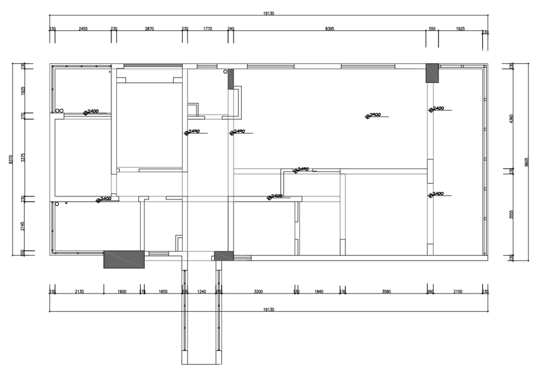
平面圖
▲改造前
▲改造後
改造點:
①四房空間,其中兩個房間較小帶小陽臺,在可以封窗的情況下,把小陽臺融入室內空間。
②原本標配廚房,在這個六口之家相對小,我們改造了隔墻,使廚房擴大了原先的一倍。
③因為小孩房本身面積較小,鋼琴外移至客餐廳部分,作為斷經處理擺放。
項目呈現
▲客廳
白色是現代簡約風格的經典色彩之一,它能夠使空間感覺更加明亮和通透。
電視背景墻做櫃體可以提供額外的存儲空間,同時保持了整潔的外觀。大理石的拼接添加了豪華感,不僅美觀也非常實用。
▲餐廳
將鋼琴設計在客餐廳部分,作為斷經處理擺放。深色木紋櫃體為走道提供了額外的存儲空間,並與客廳背景墻形成對比。
圓形的桌子在空間利用上更加高效。增加社交親近與交流方便,餐廳與客廳相通,擴大了整個客廳餐廳的空間感。
▲主臥
木飾面掛墻書桌既節省了空間又提供了一個功能性的工作區。
床頭背景的簡潔設計非常現代,墻布硬包和不銹鋼包邊為其增添了一些紋理和細節。這種設計突出了床頭區域,使其成為臥室的焦點。
▲主衛
選用豎紋大理石瓷磚做墻面,豎紋的大理石瓷磚很好的修飾了空間感。
衛生間做幹濕分離,從舒適度、美觀度、安全性等多方面都能有所提升。
洗漱區擡高,更方便清潔。
▲老人房
白色吊裝衣櫃是現代臥室設計的一大亮點。它不僅提供了充足的儲存空間,還增加空間性與設計感。
窗臺做了壁龕增加收納展示性。
木飾面與白色櫃體及墻布碰撞,墻布硬包在床頭上方增加了一些豪華感和紋理,不銹鋼包邊為其增添了現代感。
▲兒童房
由於空間較小,在可以封窗的情況下,把小陽臺融入室內空間,設計上下鋪床有效的節省空間。
書桌與靠墻櫃體的結合非常實用,墻面上的置物架和書架提供了額外的儲存空間,並可以展示書籍、裝飾品或個人物品。
地址:廣東省深圳市福田區八卦嶺工業區427棟503
503, building 427, Bagualing Industrial Zone, Futian District, Shenzhen, Guangdong, China
手機MB:136 9224 4943
客服
消息
收藏
下载
最近














