查看完整案例

收藏

下载
小宅空间
Zotova Kseniya
新作,36
㎡
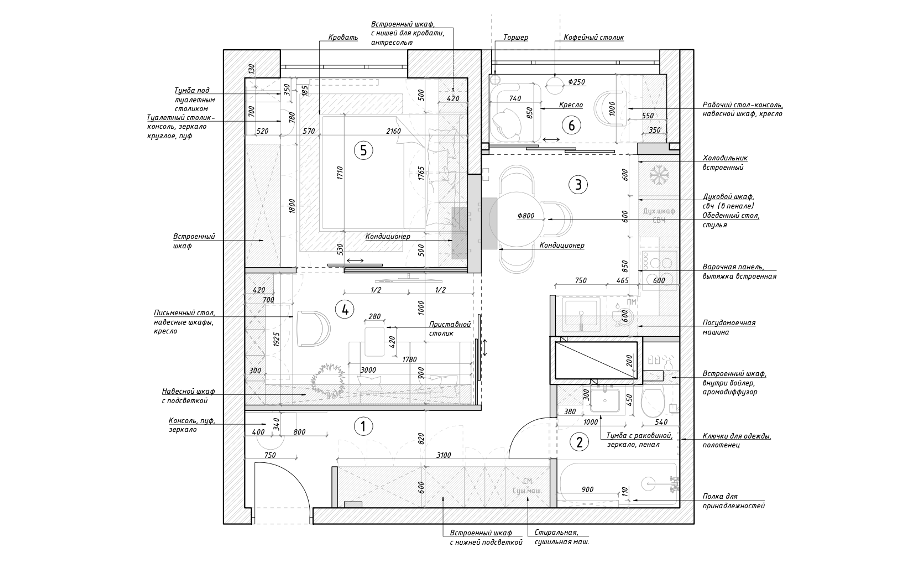
小宅设计,业主是一位年轻女孩,教法语和英语,热爱文学、电影和旅游。想要一个明亮、大气的设计,但又不会失去其相关性。
空间布局
▽
女孩和男朋友
打算长时间居住在这里,想拥有一间独立的卧室和一个工作/起居区。由于有不同的日常生活习惯,因此拥有两个独立的空间非常重要,而带有玻璃/板条/隔断或窗帘的解决方案并不合适。
这间公寓的每一米都经过仔细考虑和使用,卧室区有一个宽敞的衣柜和梳妆台,床边的墙上还有额外的储物空间和架子。尽管客厅面积很小,但这里有业主需要的一切——沙发、电视、宽敞的工作区和许多书架,还拥有一个大型图书馆。
在所有项目中,
花了很多时间在厨房上,因为这里的一切都应该尽可能方便和实用。
凉廊是放松或工作的地方,
中性浅色墙壁和翠绿色调,加上勃艮第酒红色,复古的瓷砖。
走廊里的衣柜里有洗衣机和烘干机、家用化学品和洗衣篮的储藏室、蒸锅、工具和吸尘器的存放处,当然还有外套的存放处。
在浴室里,水槽下方的柜子里有一个猫的秘密空间,以及带有内置插座的抽屉。
客服
消息
收藏
下载
最近





























