查看完整案例


收藏

下载
家不仅是从四面围合起来的空间,是审美支配的产物,是砖瓦与物品的对齐,更是生活的容器、情感的栖居。从一张桌子、一盏灯、一幅画、一缕香这些小物里,希望业主会在其中找到依靠,得到家的安慰与力量。
一层
·
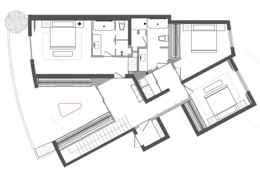
平面布局
这套案子的户型打破了以往规整的布局,意想不到的结构比例,是考验也是机会。设计师打破公式化的设计语言,调整了生活动线,合理的运用每一寸空间,让生活充满乐趣。
·会客厅
摒弃传统的电视背景墙,主沙发、沙发椅、边几围绕出合理动线,胡桃木色加上奶杏色,和整体的开阔布局不谋而合,开放式书架搭配窗景,整个家都温柔而松弛。
·
中厨
橱柜运用橡木花色,略显深色的柔和色调,和奶白色组合起来营造出一种复古温暖的舒适氛围,表面线条深压纹赋予了花色更多活力与生机。吊柜以封闭柜门+开放式隔板组合,一目了然的摆放给生活带来更多便利。
·
卧室
客卧空间整体以极简白色为主,百叶柜门更具视觉层次感,一眼惊艳。溢满质感的黑色实木斗柜,触感细腻舒适的同时,还为主卧分担了储物需求。
二层
·
平面布局
·
主卧
床头背景胡桃木色背景墙,木饰面材料材质柔软,富有层次感,搭配上组合挂画,色调协调错落有致。和主卧整个空间线条保持一致的方形吊顶,和日式纸吊灯碰撞出奇妙的火花,方圆之间,大道至简,让卧室回归生活的最本质。
·
主卧卫生间
天然大理石与原木相结合的自然元素为设计灵感,带来了优雅灵动的魅力,仿佛可以窥见生命的脉络,感受尘世间细碎的微澜。
·
衣帽间&洗衣房
衣帽间+洗衣房的设计,让空间利用到极致,动线更加顺畅合理的同时收纳储物也兼顾到,整体布局比较规整但是十分实用耐看,真正做到了空间设计是为了更好得服务于业主。
·
次卧
项目地点 · 中国 北京
项目类型
· 住宅
设计团队 · 弥尔设计 MIR STUDIO
客服
消息
收藏
下载
最近




























