查看完整案例


收藏

下载
-家-
在车水马龙的城市中,为生活奔波。心中总有一处寄托心灵的理想向往,它是人与自然敞开心扉的平台,也是给予温暖的包裹的温馨小窝。每一天的幸福都能在这里安然度过。
线条和色块的碰撞营造出精致且优雅的客厅空间
精致的挂画是浪漫与经典的结合。
空间中恰到好处的点缀,暖而不腻,优雅沉稳
打造了一个有温度的家
共享热气蒸腾的家常味,
所谓生活的美好大抵如此
开放式双人书房,记录一起奋斗的日子
空间开敞的厨房,吧台的设计让下厨也变成二人酝酿甜蜜的地方
客厅拱形门的造型设计,增加空间的层次感,同样也将生活阳台的门融入进来,尴尬区域瞬间变为家里的亮点!
电视背景弧形墙的设计,在视觉上将客厅扩大,精致却不失大气!
卫生间干区外置,不影响日常使用的同时,也作为整个家的点睛之笔!
艺术玻璃后,是日常的次净衣区,收纳与美感并存
儿童房弧形墙体
,
挡住了衣柜与墙体之间的缝隙尴尬
,
缓解了一进门就面对衣柜的那种冲突感!
分析图
原始图
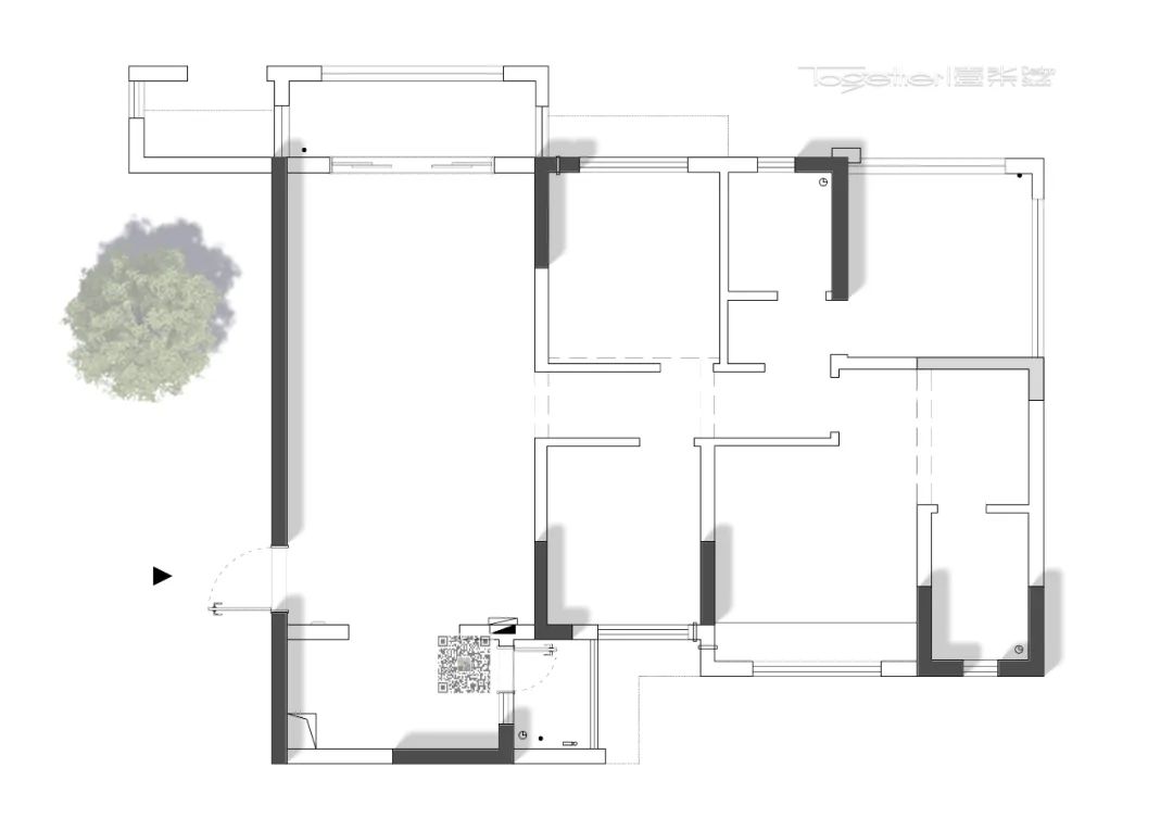
平面图
效果图
项目信息
项目坐标|
Address:
贵州遵义·金科·集美天辰
项目类型|
Type
:私宅空间
项目面积|
Area
:120㎡
设计机构|
Design
:壹柒设计
主案设计|
Main case
:任洁
软装设计|
Soft outfit
:任洁
摄影机构|
Photographer
:季光
-DESIGNER-
任洁
壹柒设计创始人
/
个人荣誉
国家高级设计师
设计青进课第一期学员
魏明哲室内照明设计高级课程学员
PCD色彩践行者
中国室内装饰协会认证设计师
PLAN璞览生活美学艺术中心《设计师专项收纳课程》学员
贵州装饰设计行业协会遵义专委会理事
CIID中室学遵义室内建筑师中心副秘书长
室内id+C杂志发起主办“绿色设计奖-中国2022年室内设计年度评选遵义站”推广大使
四川农业大学“建筑学”第二学历在读
2019年度贵州省首届《金树奖》家装类十佳设计师
遵义市建筑装饰行业第五届“居然杯”设计师大赛(专业组)一等奖
金住奖中国(遵义)十大居住空间设计师(2019,2021)
客服
消息
收藏
下载
最近






























