查看完整案例


收藏

下载
浪漫邂逅开场,如同故事的序章,在法式格调的低吟浅唱里,静诉美好时光,精美的物件,是品味,也是生活的格调。
本案采用温馨而自然的色调,与法式经典元素搭配,打造自然感的浪漫空间,将法式浪漫融于生活,契合毫不费力的生活美学理念。
[ 客户需求 ]
本案业主偏爱法式的优雅和复古的独特韵味,希望住所能与低调不张扬、精致不繁琐的生活态度相契合。
在设计上通过暖黄色奠定空间自然色系基调,以浅色为主,用部分亮色进行点缀,使空间在和谐统一的基础上更具视觉层次感,为空间平添几许温度与生机。在空间上打造更为开阔而具有互动性的布局,以适应多元化居住需求。用经典元素酝酿法式格调,轻法式不拘一格的态度,表达了天性与感性,尽情展现文艺浪漫和热爱生活的一面。
[ 功能设计 ]
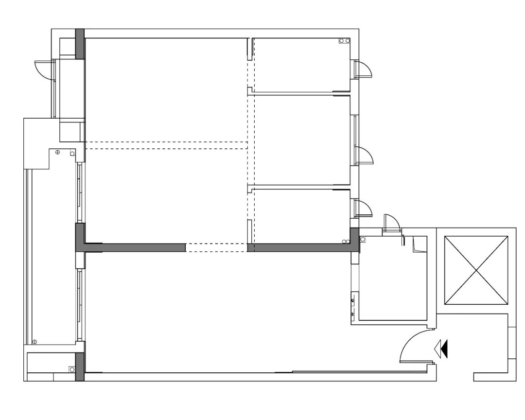
➜向右滑动,查看原始结构图
拆除厨房墙体,打造LDK开放式布局,空间开阔通透,公区功能性丰富;
打开次卧,设计为书房+健身区;承重墙一墙双用,一面为电视背景墙、一面打造书桌,既划分区域、又满足功能需求;
打开阳台,实现客厅与书房的环绕式洄游动线布局,更富有空间感;
重构公卫与次卧,在走道设计干区,并“藏入”洗衣机和烘干机,洗澡、洗衣、收入衣柜,动线更合理。
[ 视觉设计 ]
· 鱼骨拼木地板仿佛带着历史的气息,为家中增添了一份质朴的温暖。走在上面,宛如踩着法国乡村小路,听着脚步的节奏,心也跟着放松下来。
· 暖黄色墙面温暖而典雅,与落地窗引入的自然光,谱写空间的柔和,给人一种宁静的感觉。
· 法式装饰画,弧形垭口、经典PU线,无不诉说着上世纪的优雅,仿佛让你置身于巴黎的画廊中,感受着艺术的魅力。
· 在视觉感知上,浅色与深色相比,是令人觉得较为柔和、舒适的色调,而少许亮色与绿植的点缀,使空间在和谐统一的基础上更具视觉层次感,为空间平添几许温度与生气。
· 让家成为时光机,穿越时空,感受浪漫与典雅的结合。拥有属于自己的法式浪漫,享受生活的美好。
· 黑蓝拼色电视柜以色彩的巧妙碰撞吸引视线,将人的目光牵连至餐厨区,整个空间上的色彩跳跃而统一。
· 餐厨区设置一面柜体,既保留了餐厨区的空间链接,也避免了入门后一览无余。木纹与斑马纹以肌理与奇妙的碰撞,将空间渲染得更有活力与趣味性。
· 开放式厨房蓝白搭配,清新淡雅,格纹花砖更显复古,让烟火气也有浅色系的缥缈淡然。
· 圆形餐桌搭配黑白斑马纹,软化两边柜体的棱角,
撞色的活泼、木质的温润、大理石的沉稳,多元的材质与肌理在餐厅融合出奇妙的化学反应,发现法式的另一面,优雅与趣味催化空间的魅力。
· 一道拱门链接多功能房与客厅区域,优雅的弧形与精简的线条在这一视角氤氲浓郁的法式复古气息,精致的直线与曲线有了更好的配合。
· 多功能房接入阳台。环绕式回游动线形成闭环,交互性变得更强。空间也有百变的“魔法”,衣帽间、健身房、书房在同一个空间存在,身体的雕琢与精神的塑造同居者的个人魅力而肆意生长。
· 卧室则的回归了法式的自然色彩,淡然气质缓慢流淌。
· 暖白、蓝色、黑色颜色由浅至深,踢脚线也成为空间自然的装饰,呼应柜体颜色,整个空间的色彩富有层次感。
以清静欢喜之心慢度日常,生活需要长久
的浪漫娓娓道来。
· 斑马纹上墙成为壁面的“装饰画”,在法式之中带有和谐的自然野性。通往浴室的门增加一块锤纹玻璃,经光线反射产生波光粼粼的视觉体验。空间经由材质的交融围合出宁静而丰富的质感。
诗享家咨询预约入口
客服
消息
收藏
下载
最近














