查看完整案例

收藏

下载

翻译
Located in the high Jardim Botânico, the IS 100 house values quality of life and well-being, surrounded by nature and fresh air. The use of natural materials with low environmental impact, such as wood and fibers, is highly emphasized in this project, which aims for sustainability and respect for the environment.
The residence features large openings that transcend the boundaries between internal and external spaces, resulting in a sense of fluidity and dynamism that enriches the experience of the space.
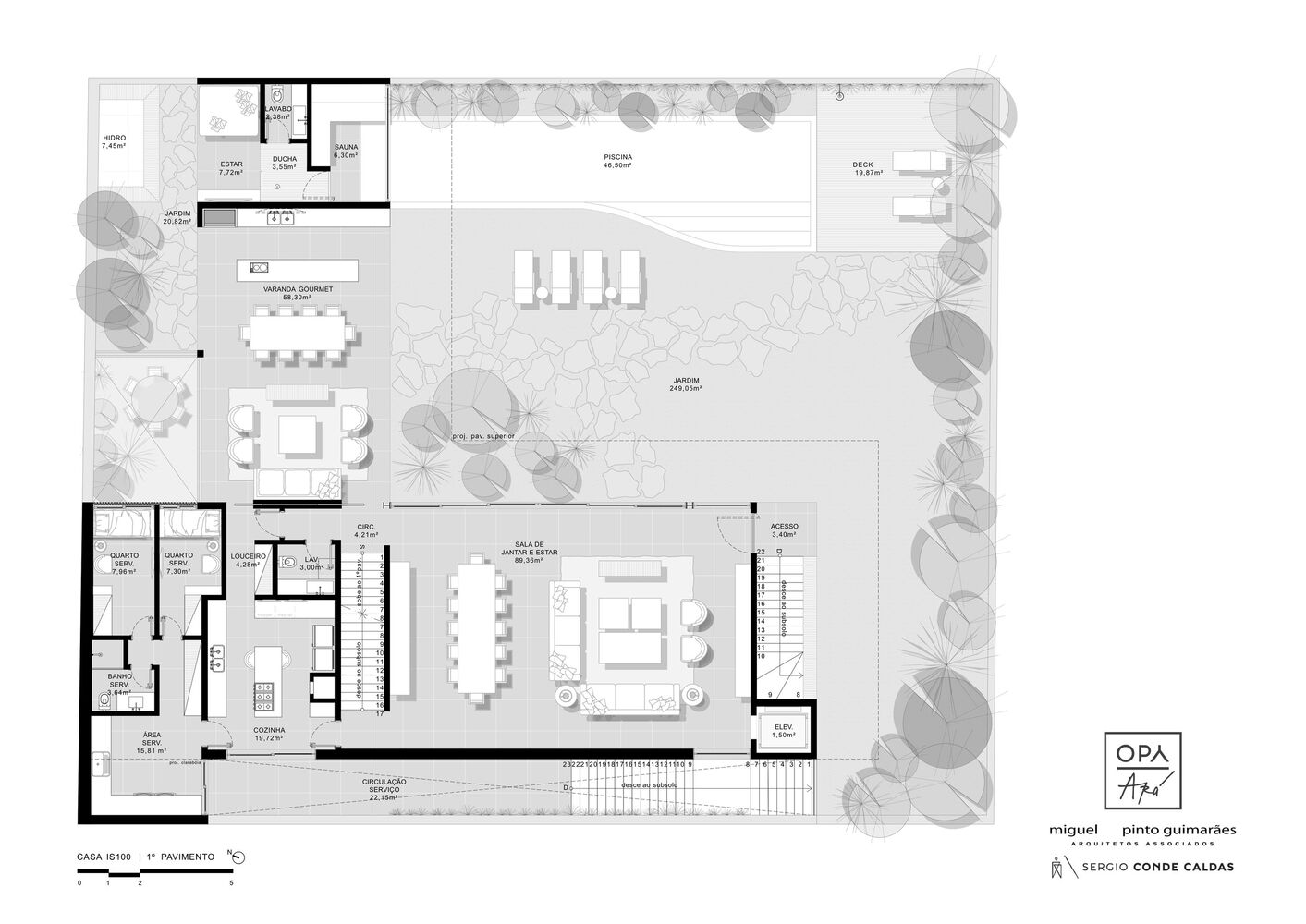
The house was designed for a family with a couple and 2 adult children, and it has 3 floors. On the entrance level, the garage is located, with spaces for cars and bicycles, customized especially for the couple who have cycling as a hobby and passion. On the same level, but with access through the living room, there is the wine cellar, a multipurpose room, the gym, and an open garden.
On the ground floor, the common areas, such as the pool, sauna, gourmet balcony, and living and dining rooms, display the family's personal and emotional collection, demonstrating their passion for art and travel. All the furniture and carpentry in the house were designed by Opy and chosen together with the couple, with attention to every detail.
The lighting project, signed by the Maneco Quinderé office, offers various configurations for illumination, providing different scenarios for different situations in the same environment, making it more versatile.
On the upper floor, there is a cozy room, an office, and 3 suites, one of which is the master suite with a spacious closet and bathroom. All the rooms have a balcony with a view of nature and the beautiful garden of the house.
The residence serves as a refuge from the stress and disorder of the city, even though it is located in the heart of
, close to all the main tourist, commercial, and bustling spots in the city.
客服
消息
收藏
下载
最近






































