查看完整案例

收藏

下载

翻译
In Shanghai, Columbia Circle is a community that reminds you of the Prada Foundation in Milan in a certain sense. Although they are situated in different places, they do have something in common. Their renovations are both made by OMA generally. The magic box in which Kolon Sport is located is the heart of the whole community. Roarc Renew is expected to open the mirror box of REM just like Pandora’s box from Milan and take on interesting scenes. This was an interesting conversation between Shanghai and Milan. It was the outdoor brand Kolon Sport that provided a platform for the conversation. We made our points in architecture, shaped the building in space, and told our stories with exhibitions. As another architectural firm, Roarc Renew showed our respect toward this house and the top firm OMA.
Garments appeared as homo sapiens began to walk upright, ranging from straw clothes to silk clothes, from linen crafting in ancient agricultural civilization to the booming textile industry in the industrial revolution. Nowadays, fashionable chemical fibers have become man-made. With the evolution and degradation of human beings, garments’ functions vary. Leaving visual appearance aside, garments play the role of protection first and beauty comes next. Why did Emperor Xian of the East Han dynasty send a belt edict to its followers? Hanfu then had no hidden pocket so the edict could be only hidden in the belt and taken out of the imperial palace to order dukes or princes to rage against Cao Cao. I reckon this might be the earliest understanding of the word “function” in the field of garments which is to bring additional properties to an object, and the more added, the stronger the properties are. Kolon is committing itself to it. Design programs of different industries are to find out the laws of the industries. The laws are the indispensable condition to understand the essence of the industries.
Kolon is adding functions. Or rather, outdoor products mean the stacking of functions and properties. They add functions and properties on the premise of abiding by objective conditions. Just as Chinese poet Guowei Wang said in his
, first you see a mountain as a mountain, then you see the mountain is not a mountain and finally you see the mountain is still a mountain. Although we mentioned functions, clothes are finally clothes. If you try Kolon clothes, you will find the hidden slip pocket, water-tight ROE fabric in lotus leaf principles, and self-heating function. They are still clothes. But what are the differences? It’s the technology and growing functions and properties. According to the understanding of Roarc Renew, design is a translation of essence. Roarc Renew is talking about the functions of a brand in architectural language. Functions are everywhere, and our understanding of the brand can also be found in many details.
We need to initiate functions of the building in a graceful way and the functions must cover both intrinsic properties and public properties. In the general renovation of this project, the building is a mirror box. If it is only a box, it is not quite functional and not quite Kolon. Here Kolon is an adjective implying functional. We need to let it initiate in a graceful way. In other words,
Kolon box wants to initiate, which is a motive. Yet the present initiating way shows its intrinsic property. If the whole mirror spins up and initiates, it is functional enough. Why? All the technological properties and gears are hidden in the box, which is a surprise, just like a sports slip pocket hidden in the sleeves and water-tight fabric. They are still clothes, but they provide a different experience.
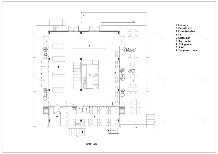
In an expression of public properties, this kind of experience is a key thought of Roarc Renew at the second level, i.e. the relation between the brand and consumer groups. Brands pay more attention to their own community or even build a community system, from focusing on products to focusing on consumers. Design is more like a bridge. Designed space is a platform connecting brands and consumers and translates bilateral needs. Through the dynamic architectural function that the box wants to initiate, indoor spaces and outdoor spaces are totally connected and combined with the whole Columbia Circle in an open way. In such a concessional way, visitors consciously or unconsciously walk into the store. Through this function, the whole space is composed of a body and multiple wings. It can be a brand culture center and a social space. In interior space design, we have the same thoughts. No matter in materials, tools display or in node design, the properties or special functions of the brand can be found everywhere thanks to the considered design. For example, we use outdoor ropes to build a space and use the Kolon tent to create a coffee space and Kolon’s technological fabrics to form an exhibition wall. We make the space field return to the intrinsic function of the brand on the one hand and shorten the distance between the brand and the public through this property on the other.
Invisible expressions in a static field. Prestress comes behind ropes. At the door, you can find a prestressed beam string countertop. Its stress system is almost the same as ropes logically except that it is made of steel. In the whole space, visible expressions are Kolon outdoor ropes, e.g. excellent protection and other functions. But you can also find invisible expressions in the static field, which is exactly the essence of the functions. There are some visible things on the one hand and some hidden things on the other. Static field is also applied in illumination design. By illuminance calculation and analysis, the space is lightened up homogeneously in the space.
The simplest hanging way for outdoors is to straighten a rope between two points and hang articles. In the space, we also arranged ropes horizontally and vertically and pulled ropes into tighteners with pulleys. Being different from common engineering materials, ropes are flexible in tenacity. As time goes on, the tension becomes loosened to a certain degree. For this reason, Roarc Renew made a 1:1 sample in the factory in advance to make a long-time load test and finally determined a suitable tighter to keep ropes always tight. Then we hang lamps and lanterns in longitude and latitude directions. This tension order was also hidden in the space. Prestressed tools helped realize the “large span structure” of furniture. Roarc Renew often sees prestresses of buildings as cocoons and applies the principle elsewhere. There is a constant force on the earth, that is, gravity. In long-span structures, to resist gravity, people come up with pretressing - applying a force to the structure in advance to offset the deformation caused by gravity. In this design, prestress was applied to the bowstring truss structure. As the main beam of the long exhibition table on the first floor of Kolon Sport 1973, a “large-span structure” of furniture was realized.
Roarc Renew explored more forms of force transmission when expressing forms of force in space. Let’s take the air bridge for airport boarding, for example, the open-web truss is mostly used as the main structure. Taking the structure and scaling it down at the same proportion, we also used open-web trusses in booths and exhibition frames. The structure is not only lighter and thinner but also offers larger spans for service demand. Then it was fixed by Kolon outdoor ropes. In the beginning, we found that a single rope could only guarantee the transmission of force in one direction (vertical gravity), while it was easy to shake in the other direction (lateral yaw), so we tried to add more lateral ropes to offset the potential yaw force, and finally, we found that once tensions transmitted by ropes formed a triangular, it is easily stabilized. The application of forces on different scales also gave us a lot of inspiration.
Soft joints connect the space and the brand. This is a dialogue between the brand details of Kolon and the architectural space. We found that product characteristics of the brand can be made as design points in the space and generate a reconciliation. In this space, we introduced a new concept of joints - soft joints. What is a soft joint? It is like that we use buttons instead of screws for fixing, that we use zippers instead of mortise and tenon joints, that we use rope binding instead of gluing, that we use high-density nylon straps for A-shaped columns, and that we stretch cloth to realize counters. These fabrics and metals from Kolon garments are arranged in the space so that the indoor space has its own clothing style.
The walls of the second floor are a good exhibition space, but the original window is an obstacle. If it is completely closed, the space will be blocked. In order to solve this issue, Roarc Renew tried the technological fabrics of Kolon, which are breathable, transparent, and easy to clean. They are the best curtains. With this background fabric, there was a new problem - how to display it? Then Kolon hiking backpack straps come to our mind. There are many multi-functional woven straps, which can accommodate a variety of outdoor accessories. Roarc Renew applied them to ribbons, and then tightened two ends of the ribbons and arranged them on the upper and lower edges of the window as a display column. With zippers, the technological cloth is installed in the two ribbon exhibition columns. With the design of this basic exhibition wall, the following work is clear. We specially developed a garment display system, including front hanging, side hanging, stacking, display on the counter, poster hanging, screen hanging, and space identification system. All details demonstrate Kolon culture no matter it’s a button, a zipper, or a care label. The store itself also acts as an exhibition hall. We used exhibition cloth, ribbons, zippers, hiking ropes, and all special nodes to make the space soft to the maximum extent. Soft points in the space echo with characteristics of garments.
Function transformation for Kolon outdoor. The functions mentioned above are only an embedded part of the project. Roarc Renew believes space is a carrier of field (place) for people (community) and goods (brand), where elements can evolve and get together. For this commercial space project, we pay much more attention to opening up the new scenario. In a word, we are trying to build up a retail scenario that includes commercial elements, lifestyle, and brand culture, a magic box where you can find a place for individuals, neighborhoods, and the community. It’s what Roarc Renew has been doing in the past few years, creating sociological influence for brands with considered design. We opened up the building and integrated it with the public space so that neighborhood and passersby could also get a glimpse of it; the strong outdoor style ropes set up the space, and the displaying system was decorated with brand fabrics/materials, blending the brand element into the space naturally; we try to bring back the essential function of the space and the displaying system, with ingenious design we created an open space full of brand elements that you can have a cup of coffee, outdoor camping, and join the KOLON ROAD LAB activity. We intend to integrate the brand culture seamlessly with the space to quickly win over the audiences so that brand recognition is achieved with cultural recognition. As we take root in the neighborhood and community, the brand can find its strength growing in the space.
客服
消息
收藏
下载
最近























































