查看完整案例


收藏

下载
这是位于仙台市风景优美的山丘上的新建住宅区中的社区中心,住宅区共有721间独立住宅。 该场地位于一个住宅区的中心,介于东西延伸的公园之间。 它由两种设计组成:一楼的方形体量和二楼的山形屋顶体量。 我们创造了一种与周围住宅区相协调的外观,同时赋予它作为城市中心的存在感。
This is a community center built in a newly constructed residential area with 721 detached houses on a hill with a great view in Sendai City. The site is located in the center of a residential area, between a park that stretches east and west. It consists of two designs: a square volume on the first floor and a gabled roof volume on the second floor. We created an appearance that harmonized with the surrounding residential area while giving it a sense of presence as the center of the city.
▼外观概览,Overall view ©Kaoru Yamada
▼建筑立面,Building facade ©Kaoru Yamada
▼立面局部,Part of the Facade ©Kaoru Yamada
▼檐下空间,The Space under Roof ©Kaoru Yamada
室内空间的设计展现了一层和二层不同的结构框架,营造出带有木质温暖的空间。 我们希望它能为生活在城市中的居民提供一个舒适的场所。
The interior space is designed to show the different structural frameworks on the first and second floors, creating a space with the warmth of wood. We hope that it will become a comfortable place for the people living in the city.
▼首层室内空间,The Ground Floor Interior Spaces ©Kaoru Yamada
▼二层室内空间,The First Floor Interior Spaces © Kaoru Yamada
▼夜景概览,Night view © Kaoru Yamada
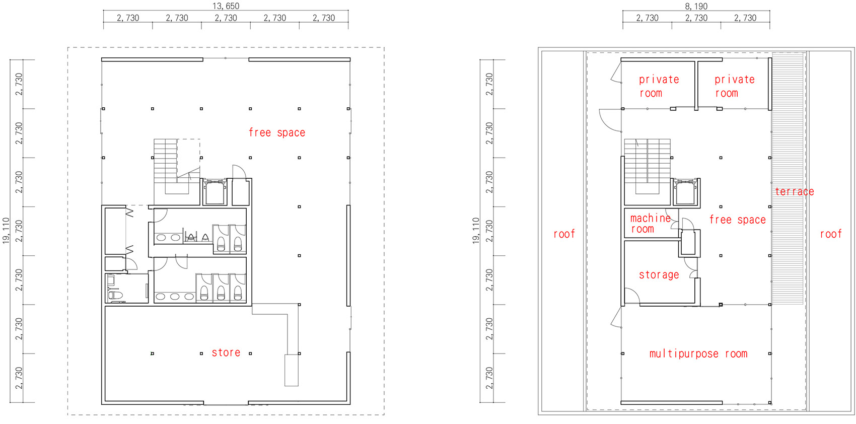
▼平面图,Floor Plans ©Kaoru Yamada
Architects: + NEW OFFICE Location: Japan Construction Year: 2023 Site Area:756.55m² Building area:299.07㎡ Total floor area:417.36m² Photographs: Kaoru Yamada Purpose:Community Center
客服
消息
收藏
下载
最近















