查看完整案例


收藏

下载
办公设施, 可持续性 & 绿色设计, Wallingford, 英国
建筑师:Scott Brownrigg
面积:2787 m²
项目年份:2020
摄影师: Hundven Clements Photography
厂家:Amtico, British Gypsum, Delta Balustrades, DuPont, Formica, Formwise, Pilkington, Schueco, Sika, Solus Ceramics, Ted Todd, Waverley
主创建筑师:Ed Hayden
设计团队:Ed Hayden, Rosa de Pablo, Barry Clarke, Fernando Mesquita
客户:CABI
工程师:Hoare Lea, Perega
景观设计:Macfarlane + Associates
顾问:Project Managers and Lead Consultant:Ridge and Partners LLP
施工方:Barnwood Construction
City:Wallingford
Country:英国
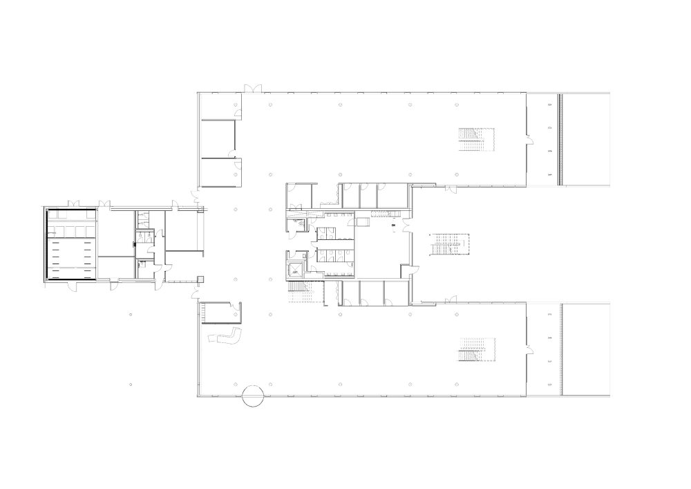
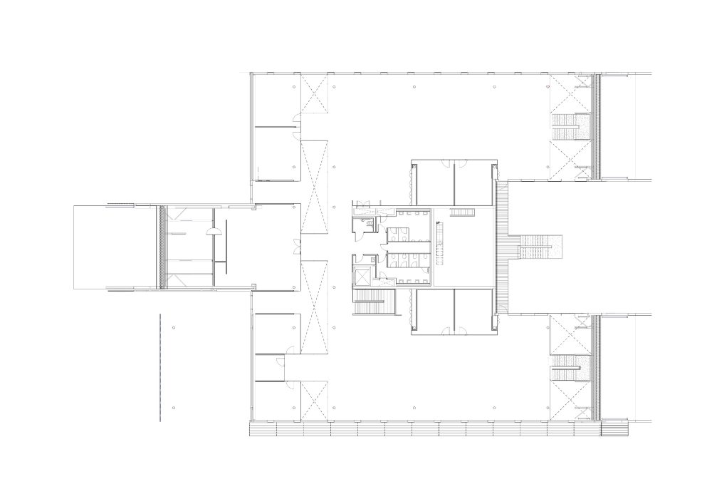
由Scott Brownrigg设计的国际非营利组织CABI总部已经顺利完工。国际应用生物科学中心总部(CABI)运用科学技术来解决农业和环境问题。Scott Brownrigg与项目经理和首席顾问Ridge and PartnersLLP一起完成了一项低能耗的设计,该设计提供了一个两层的办公空间,将实验性的生物多样性景观与一个新的协作灵活的工作环境巧妙结合。
该项目的核心是CABI对鼓励生物多样性和保护环境的承诺。该设计是高度节能的,在材料、朝向和结构方面都有详细的设计策略。设计包括对建筑材料的精心选择,这将减少能源消耗,以实现低碳使用的目标。
建筑的设计优先考虑被动式的可持续性,东西朝向的设计弱化太阳的影响,并在夏季提供遮阳,在冬季引入阳光。
2020年完工意味着总部办公人员优先考虑的情况的转变,由于新型冠状病毒的影响,他们更加重视清洁空气。自然通风是一个关键的设计因素,穿孔立面实现了这一点,新鲜空气可以在白天和晚上进入建筑。空气上升并在顶部被收集。热回收通风在冬天可以预热空气,然后传送到每个楼层。
总监Ed Hayden提到:“当办公楼变得太热或没有足够的新鲜空气时,一个警示灯系统会提醒用户。它将提醒用户打开窗户,以增加建筑内的新鲜空气。它的设计依赖于建筑和使用者之间的交流和合作,而不是纯粹的机械与电气驱动,为用户提供了一个自然、健康和安全的环境”。
该建筑坐落在一个风景优美的场地,曲面的屋顶与周围的环境相呼应,这将吸引昆虫和鸟类,提高生物多样性。在建筑内部,可以容纳多达180名工作人员,这与之前在1910年成立的一个小型研究委员会相去甚远。员工和访客可以享受一系列的便利设施,包括咖啡厅、会议室和礼堂。
最近被任命为CABI首席执行官的Daniel Elger博士是首批搬入新总部的员工之一,新总部同时也是CABI出版业务的中心。他说:“我很高兴能在我们英国总部领导一个专业团队,他们将与我们全球中心网络的同事一起帮助世界各地数以百万计的小农户种植更多作物,减少作物因为病虫害带来的损失。”
项目完工照片 | Finished Photos
设计师:Scott Brownrigg
分类:办公设施
语言:简体中文
阅读原文
客服
消息
收藏
下载
最近























