查看完整案例

收藏

下载
为了更好的适应三代人的生活,它开始了改变...
家宅
时代的变迁,事物的变换,人与人之间的相处方式的变化。
家的表情,个性亦随着人的变化而变换。
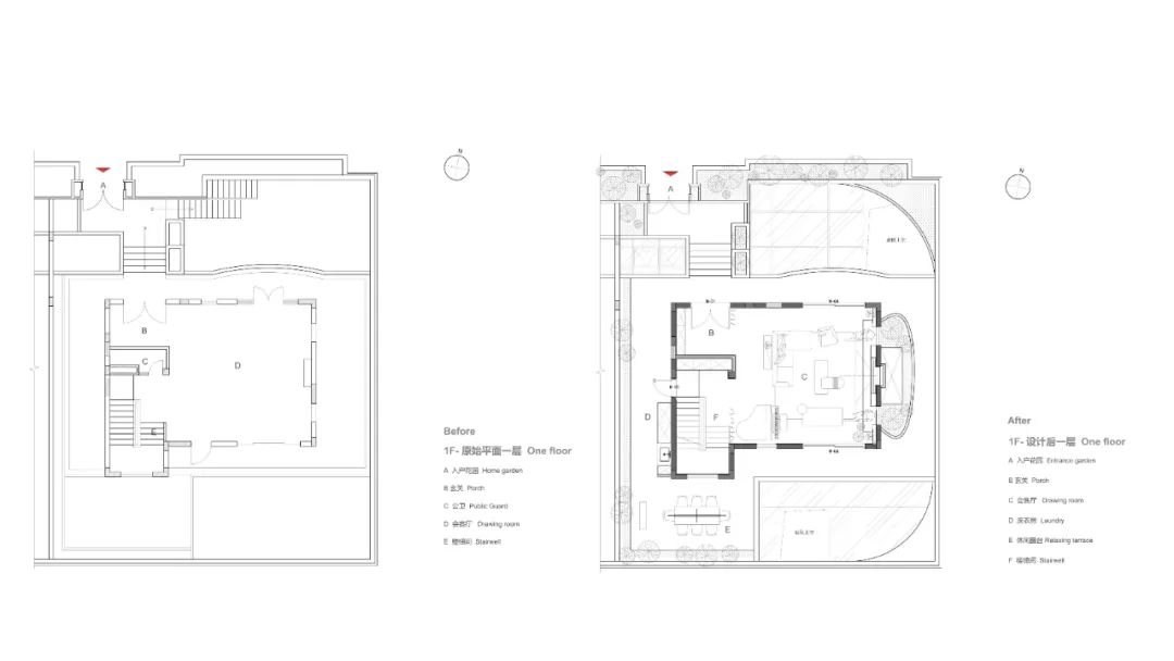
▲1F 入户花园
▲建筑新旧对比
上海虹桥高尔夫别墅,业主在这里生活了 20 多年,这所房子见证了少年成长的历程,如今它将要迎接全新的下一个 20 年。
家宅是一个家庭共同生活的地方,承上启下也是家宅的意义所在。我们在知道了这间房子原先的设计也是由业主的父亲一笔一尺的规划监理出来的时候,更加肃然起敬。
关于设计改造的界限我们达成了一致,基于限制条件、风水等因素,我们最终选择以翻新的方式做整体改造,对于原先的建筑,结构,空间尺度,动线我们做了局部调整,以更新的方式让这个家换上崭新的衣裳。
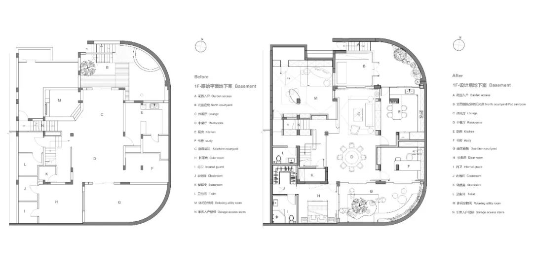
-1F 客餐厅主要生活功能空间
▲-1F 层空间改造分析图
-1F 负一楼
变化最大的是地下室空间,结合他们的使用习惯,保留两个入户方式(庭院入户、花园入户),扩展部分厨房空间,原先南面闲置的储物间改造成独立书房,再将原先阴暗的夹层储物间改造成儿童书房和活动室,吊顶开采光天窗,增加了一条活动室的动线。
▲-1F 层车库入户玄关
▲-1F 层餐厅,休闲厅
▲-1F 层
20 年前购置的 rams 餐桌椅
保养
后
继续
使用,搭配
新的 TomDixon 吊灯
▲厨房光线透过磨砂长虹玻璃酒柜映在客厅里,内里的物件形成了有趣的光影画。
▲-1F 层厨房改造前后对比
▲-1F 层书房
▲-1F 层书房收纳柜里的盲盒玩偶
▲-1F 层长辈房
▲施工过程中三口之家升级至四口之家,一些功能又发生了变化。
▲性格迥异的两小只 pocky 和 小 co
▲-1F 层姐姐书房的过道
▲-1F 层电视机背景墙改造前后对比
1F 休闲会客厅
1F-一层些许改造,焕新了空间皮肤,明亮的光影让窗外的绿意引入空间。重新设计壁炉,保留旧的钢琴,将原先楼梯口有些危险的缺口处增加了木片格栅当做隔断。过去一直闲置的一楼空间,现在变成朋友聚会打卡的主会客厅。
▲1F 玄关预留了置物开放柜
▲设计师苹果手机直出照片
▲1F 层客厅主要功能是会客,练琴,拍照。
整个空间包围在柔和的漫反光里。
▲保留原楼梯结构,更换扶手和材料,增加踏步灯
▲将原先复杂的门窗更换成大玻璃窗,直面天空的色彩
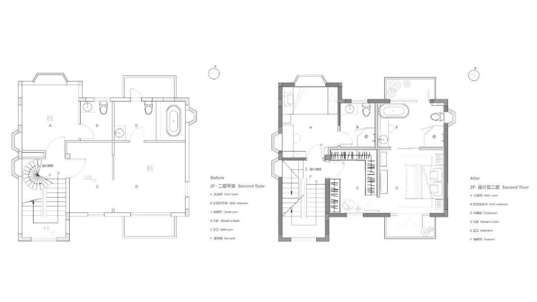
2F 休息区
2F-二层开敞的玄关,改造后增加了主卧储衣空间,同时满足了隐私性和安全感。参考女主人的喜好打造了空间,增加了女孩房的储衣柜。
▲主卧干净明亮里包裹着梦幻粉
▲主卧洗手间
▲设计师手机直出照片
▲下午下起了阵雨,光影更显柔和
▲2F 姐姐粉色的洗手间
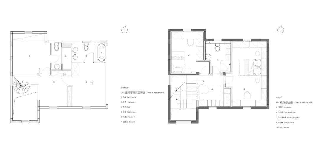
3F 少年时候的卧室改成二宝的婴儿房,不变的是看向窗外的风景
3F-阁楼靠里面带有独立卫生间的房间以前是业主少年时期的卧室。设计之初是计划给姐姐的读书玩耍空间,不久业主有了二宝(妹妹),这个房间就设计成了妹妹的卧室。再加上阿姨房,洗手间挪至中间改成外卫供阿姨和妹妹共同使用,起居厅部分调整成了姐妹的玩耍区。
▲开阔明亮的阁楼楼梯间
▲阁楼楼梯改造前后对比,
将通往阁楼狭窄的环形楼梯改造成宽敞温暖的直跑楼梯。
▲改造后的阁楼楼梯用实木层板温暖自然,调整踏步数量及高度,上下楼更轻松减缓膝盖压力。
▲原先爸爸的起居厅改造成了姐妹的玩耍区
▲妹妹的大卧室增加了隔热层,主要以泛光照明点亮空间
拍摄花絮
动次打次~
特约摄影师、设计师本人
“搬运工”、“安装员”
无所不能的设计师,身份自由切换
热情给力的 pocky 和小 co
实现“撸狗自由”
自拍留念
虽苦,又甜~
项目信息
项目名称:上海虹桥高尔夫 363㎡老宅翻新
项目地点:上海闵行区虹桥高尔夫别墅
设计面积:363㎡
设计主创:陈善武
庭院设计:张建乐
空间主材:德赛斯岩板,米黄大理石,橡木饰面,艺术涂料,实木复合地板,博士门窗,超白银镜,摩根智控,GESSI 捷仕卫浴,写意空间
项目摄影:瀚墨视觉-阿刁
陈善武 / Sam Chen
ARCHSAM 叙室/ 主理人
无垠设计研究室 / 创始人
温州瑞安人,十余年致力于空间,结构,光影,肌理,人文的设计研究。认为每个空间它本身都具有一定的叙事性,使用者的融入会发生新的叙事关系。
设计作品多次获得国内外设计奖项,代表作《秋田布谷二期》、《沐光海棠》、《控客智能展厅》。
2020 第十二届祝融奖全国铜奖
2020 40 UNDER 40 中国(杭州)设计杰出青年
2020 中国新商业空间大奖-最美民宿-最美主题餐厅
2020 ADDC 空间魔法师·酒店/度假铜奖
2020 第九届 BEST DESIGN 大奖(酒店民宿类)
2020 OPAL 伦敦杰出地产大奖
2021 年 IAI 全球设计奖-建筑奖铜奖-室内奖铜奖
2021 新商业空间大奖·杰出设计师
2021 国际色彩空间设计·十佳设计师
2021 未来空间智装设计大赛 TOP10
2021 入选《ELLE 家居廊》
2022 40 UNDER 40 中国(杭州)设计杰出青年
2022 IS 全球智能空间设计奖
2022 WYDF 年度百大杰出设计青年
2022 40 UNDER 40 中国(杭州)设计杰出青年
2023 第三届【设计中国】银奖
目前作品发布于全国各大媒体平台:设计之旅,往期案例
以商业零售,民宿,酒店,私宅,展厅,办公等为主要业务方向,倡导以空间叙事,组织,创造,融合,呈现出适合业主,顺应时代,有温度,有情感的叙事空间。
设计&咨询服务请联系:
T:19011270276
客服
消息
收藏
下载
最近










































































