查看完整案例

收藏

下载
影像社会,艺术的坐标编织着城市的隐秘与显现。建筑游移其中,经由城市底片,在无数次‘破像’探索中,一次次曝光,显影,叠加 —— 3w•影像艺术中心,一个更具广袤形态的影像单元正在发生。
图像构筑的感光大地上,城市影像建筑,像一个蕴含着无限诗意的时空介质,将1
⅓
咖啡
庭院,
流动的天空影棚
,
戏
剧
性
的
美
术
置景在平行交错中的空间叙事中重新对话,让影像流经建筑,
在真实世界中狭路相逢,以媒介路径的算法,曝光人,艺术,城市与自然之中隐秘的力量。
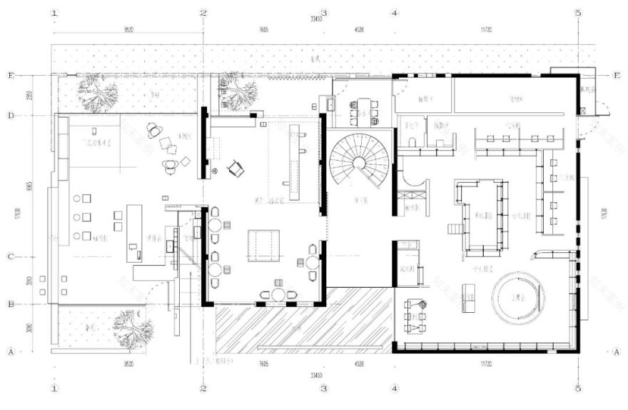
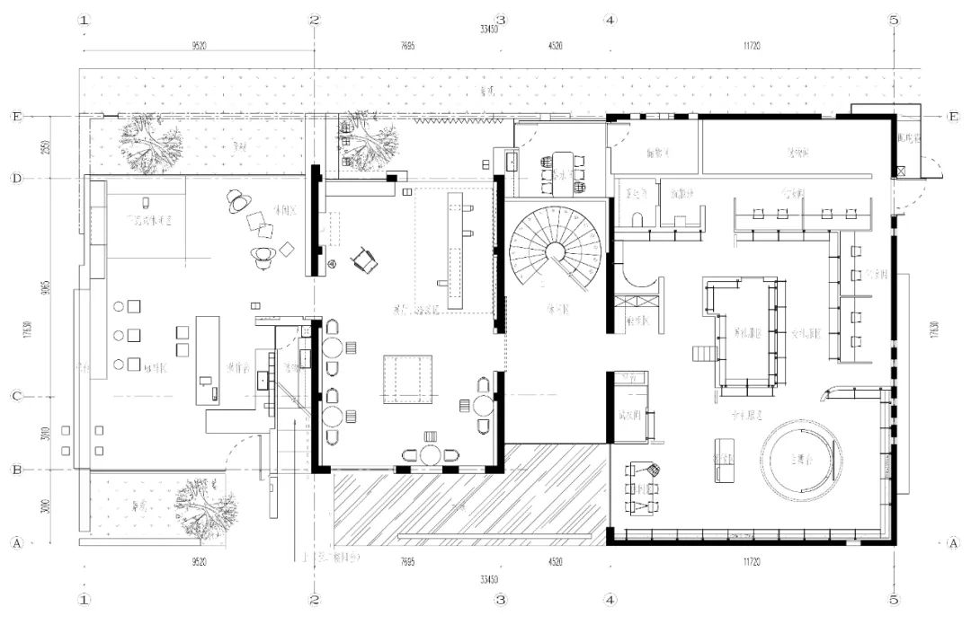
项目名称:3W·影像艺术中心
项目类型:商业空间
项目面积:1200m²
建筑由1⅓咖啡庭院,影像展览(影像&美术置景)与婚纱摄影基地共同演绎而成,形成内外空间相互交错的建筑体验路径。
当人们抵达3w•影像艺术中心,咖啡庭院与日光露台上下交错的建筑路径引发跨媒介之间的流通体验,与室内的影像展厅及摄影基地,一同形成一条空间上的莫比乌斯环路径结构,关于3w的影像,时间,记忆则在观者回环式的行走中,一一复现。
▼
△不同光线下,实验性的粉色一体漆随着日光不断变幻。
(旋转手机,查看室内全景)
自然的光,落叶,岩石,经由时间的作用,渗透入室内,形成交互性的内庭景观。
光,作为动态介质,伴随着空间能量波动和物质运动,与不锈钢墙面装置一同,交织出建筑的光合形态。
△二层,美术置景&天空影棚区
△二层,咖啡&自然日光露台
△三层
,屋顶茶园
3·W影像艺术中心,一座城市社交ICON艺术地标。光点构图、金属实验、几何制造……经由图像所构筑的艺术情境现场,不断重塑着当代城市空间的活性化变革方式。
正如图像的尺寸边框切分了人类所在的无限空间与时间中的一块,在城市建筑有限的边界之中,人们也正通过空间中无限的表征和多重含义,将个体之间浪漫且多元的意识宇宙勾勒出来。
客服
消息
收藏
下载
最近







































































