知末
知末
创作上传
VIP
收藏下载
登录 | 注册有礼

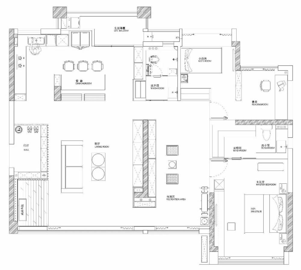
株洲奥园养生城住宅

2018/04/01 11:12:50
查看完整案例
微信扫一扫
收藏
下载
这是一个设计师朋友做的,非常不错。本案着重于空间重组,致力于打造出自然流畅的空间线条,整体色调力求统一,和谐,舒服就好。木质的运用在空间中起调和作用,让空间有那么一丝温度。
株洲奥园养生城住宅-1
株洲奥园养生城住宅-2
株洲奥园养生城住宅-3
株洲奥园养生城住宅-4
株洲奥园养生城住宅-5
株洲奥园养生城住宅-6
株洲奥园养生城住宅-7
株洲奥园养生城住宅-8
株洲奥园养生城住宅-9
株洲奥园养生城住宅-10
株洲奥园养生城住宅-11
株洲奥园养生城住宅-12
株洲奥园养生城住宅-13
株洲奥园养生城住宅-14
株洲奥园养生城住宅-15
株洲奥园养生城住宅-16
株洲奥园养生城住宅-17
株洲奥园养生城住宅-18
株洲奥园养生城住宅-19
株洲奥园养生城住宅-20
株洲奥园养生城住宅-21
株洲奥园养生城住宅-22
株洲奥园养生城住宅-23
株洲奥园养生城住宅-24
株洲奥园养生城住宅-25
株洲奥园养生城住宅-26
株洲奥园养生城住宅-27
株洲奥园养生城住宅-28
株洲奥园养生城住宅-29
株洲奥园养生城住宅-30
株洲奥园养生城住宅-31
株洲奥园养生城住宅-32
株洲奥园养生城住宅-33
南京喵熊网络科技有限公司 苏ICP备18050492号-4知末 © 2018—2020 . All photos and trademark graphics are copyrighted by their owners.增值电信业务经营许可证(ICP)苏B2-20201444苏公网安备 32011302321234号
客服
消息
收藏
下载
最近