查看完整案例

收藏

下载

翻译
‘ocio’ means rest or relaxation space. As coffee culture became popular, it was intended to embody the mental relaxation felt while drinking coffee rather than simply drinking and savoring coffee. The intention was to draw visual attention to the exterior with 'stainless steel,' and the red wave bricks stacked high from the second to third floors enhanced the volume of the building.
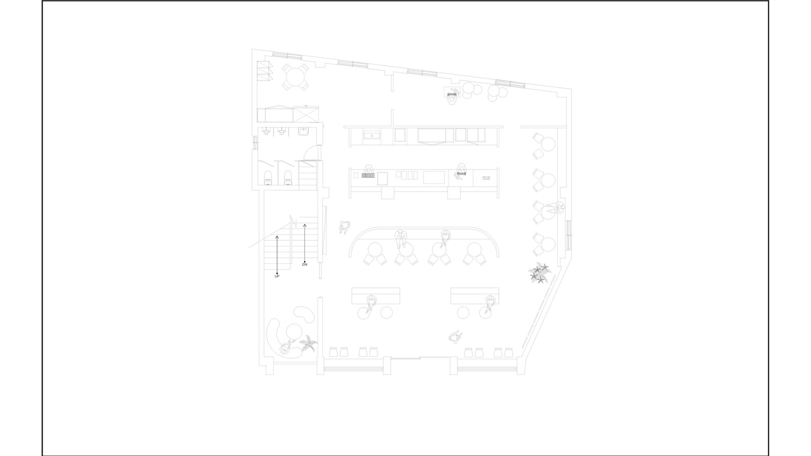
We tried to arouse curiosity about the space through the contrasting images seen from the outside and the inside, and when you come inside, you will find a heavily placed space on the first floor. A coffee bar and built-in chairs were placed using round-shaped formative elements, and colorfully overlapping materials and tones created a unique space.
Painting with a thick texture and steel, a cold material, were selected as the main finishing materials, and the movable furniture, round-shaped built-in chair, and display wall were all made of wood to express warmth and peace of mind. Coming up to the second floor, a round partition with a rough texture centered the flow of the space, with freely placed tables and a space inside.
Using furniture and table arrangements with a completely different sense of volume gave the space a sense of mass and fun at the same time. The small details hidden here and there were enough to further express our individuality.
客服
消息
收藏
下载
最近























