查看完整案例

收藏

下载
世间万物无不处在发展变化的生长过程中,建筑亦是如此,在土地资源紧缺的当下,提升历史建筑的适应性和如何更好的再利用已然成为了可持续性探索的重要命题之一。此举不仅能够改善空置建筑带来的资源浪费,同时还可通过低预算、高效率的方式实现空间再生,使历史建筑得以融入现代城市环境。
01
Dabang Café
one-aftr
韩国·全州
©Jang Mi
植物和建筑一样,有着生命周期,自然生长、衰竭以至于消失。这座位于全州市的咖啡厅曾是三栋废弃的工人宿舍,受到侵蚀的木框架和屋瓦自空中掉落,此类结构性的损坏、腐朽为植物提供了萌芽与生长的基础,场地也因而演变成了生机盎然的室内花园。
©Jang Mi
one-aftr在项目改造时系统性的拆除了部分墙体和屋顶,并以透光防晒的材料和开放性的布局实现更好的空气流通,兼顾客群的使用需求和植物生长的条件。此外,团队还将其中一片空地改建为下沉式的景观花园,构建植物、人类、建筑以及环境协调共生的有机场所。
©Jang Mi
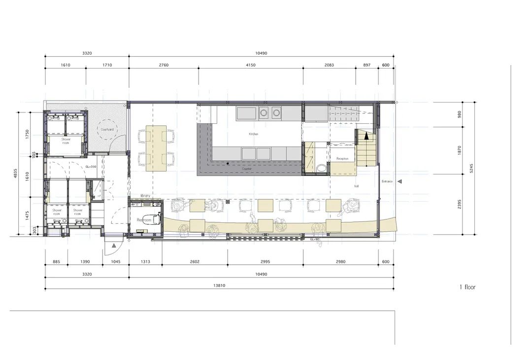
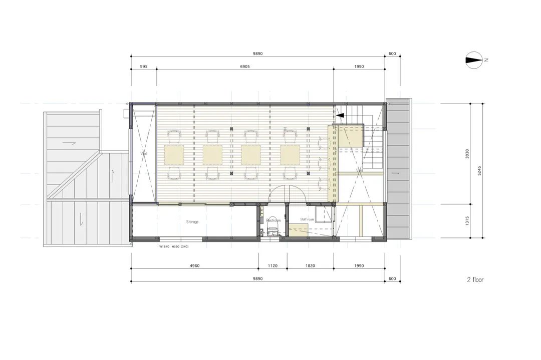
△平面图
02
Misumi Annex Renovation
Studio AMB
日本·岛根县
©Ryo Tsuchida
Studio AMB将一座拥有120年历史的岛根县传统木屋改造成了可供现代使用的居住空间,这处面朝大海的场地背靠山坡,原有的建筑风格与人们印象中的日本庭园大相径庭,半露天的开放式布局颇有海港渔村的地域色彩。
©Ryo Tsuchida
为了诠释日本土间的传统理念,建筑师将厨房和卫生间等功能空间移至底层下挖的区域内,一方面保证了建筑内外之间的连续性,同时也考虑到居住的隐私问题,使旅客能够充分体验当地独特的人文风貌。
©Ryo Tsuchida
左右滑动查看更多图片
03
Wand Café
Kazuteru Matsumura Architects
日本·京都
©Yoshiro Masuda
具有日本传统特色的町屋是京都重要的文化遗产之一,Wand Café位于全长80多公里的京都环形通道入口一侧,旨在为游客提供停留休憩和便利的住宿。年代久远的町屋因多次修缮而失去了原本的特色,建筑师与当地木匠Masaaki Okimoto合作恢复了原始优雅的结构和形态,使咖啡厅成为了町屋街景的一部分。
©Yoshiro Masuda
Kazuteru Matsumura Architects在规划时充分考虑了修复结构与空间更新之间的平衡,位于中心的备餐空间利用艺术家Yuko Yamamoto制作的靛蓝色木板为墙饰,与内部的钢板饰面形成了鲜明的对比,体现出传统工艺与工业产品的碰撞、融合。
©Yoshiro Masuda
左右滑动查看更多图片
04
SawyerJeong House
STAY Architects
韩国·庆州
©Kiwoong Hong
SawyerJeong House位于庆州市最具代表性的历史中心与发达商业区之间的街道内,是一座由传统韩屋改造而来的私人住宅。建筑师首先更换了腐朽的木结构和损坏的屋瓦,在保留韩屋整体外观的前提下使新建结构更好的适应当代人的生活需要。
©Kiwoong Hong
大门和主楼的外墙大胆地使用了现代的表达语言,内部则着重强调空间的连通性,所有非承重的墙体被拆除,仅以立柱与高差变化来暗示空间属性的不同。庭院凭借四周围合的建筑墙体构建无人打扰的户外空间,在繁华的市井内打造了一片独享的自在天地。
©Kiwoong Hong
△平面图
编辑:Ne
iWai
撰文: YouChuan
校改:YueQiu
编排:Holy
客服
消息
收藏
下载
最近









































































