查看完整案例

收藏

下载
Project story
项目故事
油卤串串做为今年很火的一个赛道,大家都纷纷推出自己的主打特色产品。串大嘴以“大嘴哥”为主形象IP,是门店最闪耀的一颗星,结合“三十年油卤,特色小碗冒”的形式,一经推出,深受广大消费者的喜爱。在成都三圣街直营店,一度出现凌晨还在排队的火爆场面,也成为整条街最靓的仔。
Project information
项目档案
项目名称:串大嘴西安店
项目地点:西安碑林区
项目业主:成都串大嘴餐饮管理有限公司
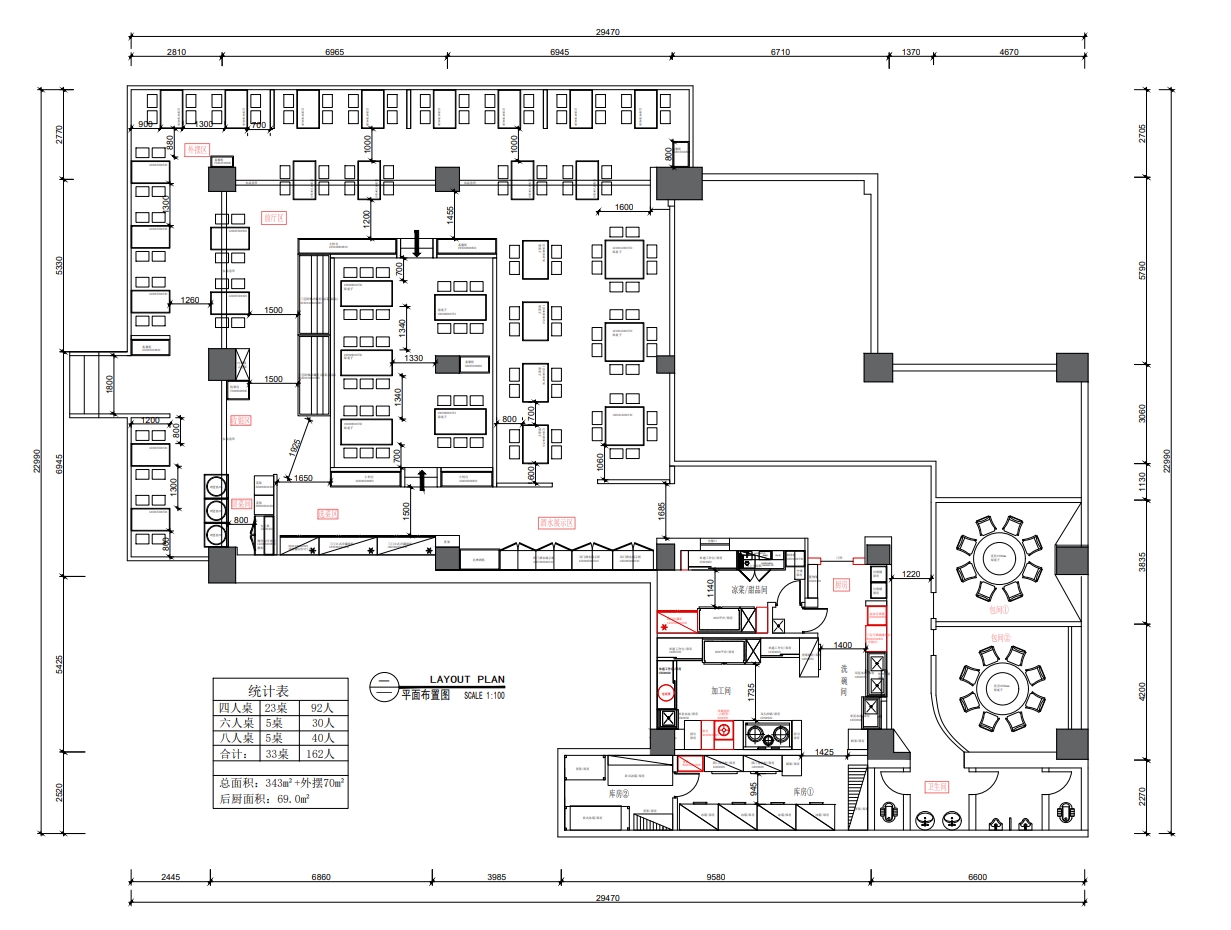
面积:420.0m²
项目介绍:
大嘴在成都火爆以后,做为第二站的西安,同样想以此为点,走出成都,走向全国。该店有350平的室内加上70平的外摆,在设计的层面,首先将外摆区做矮,室内部分抬高,丰富场景的立面感,搭配上矮的竹椅和桌子,市井氛围浓郁又饱满。
在梳理大嘴的整个动线上,冒煮区放在门口,挂上烤鸭,香味扑鼻,闻香而来。室内有专门的选串区,酒水区,让酒文化充斥整个空间,氛围上主打一个做旧、破烂、市井气。
客服
消息
收藏
下载
最近






































