知末
知末
创作上传
VIP
收藏下载
登录 | 注册有礼

四川达州 SEE YOU 酒廊丨中国达州丨李军(一僧)

2021/09/16 23:09:39
查看完整案例
微信扫一扫
收藏
下载
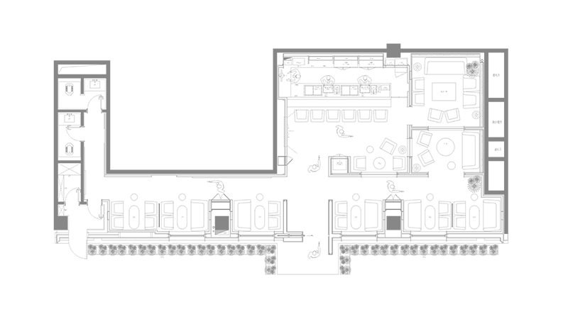
项目:SEE YOU
地址:中国四川达州罗浮广场一楼
性质:酒廊
面积:138
设计:李军(一僧)
表现:aTng糖
夜晚---精致的纸醉金迷
四川达州 SEE YOU 酒廊丨中国达州丨李军(一僧)-7
四川达州 SEE YOU 酒廊丨中国达州丨李军(一僧)-8
四川达州 SEE YOU 酒廊丨中国达州丨李军(一僧)-9
四川达州 SEE YOU 酒廊丨中国达州丨李军(一僧)-10
四川达州 SEE YOU 酒廊丨中国达州丨李军(一僧)-11
四川达州 SEE YOU 酒廊丨中国达州丨李军(一僧)-12
四川达州 SEE YOU 酒廊丨中国达州丨李军(一僧)-13
四川达州 SEE YOU 酒廊丨中国达州丨李军(一僧)-14
南京喵熊网络科技有限公司 苏ICP备18050492号-4知末 © 2018—2020 . All photos and trademark graphics are copyrighted by their owners.增值电信业务经营许可证(ICP)苏B2-20201444苏公网安备 32011302321234号
客服
消息
收藏
下载
最近