查看完整案例


收藏

下载
Office Buildings, Cowork Interiors, Braud-et-Saint-Louis, France
设计师:CoCo architecture
面积: 1440 m²
年份:2019
摄影:Edouard Decam
设计团队:OTCE, AcousticA, EEC, Agence B, Tabaramounien
业主:Communauté de Commune de l’Estuaire
工程师:OTCE
景观设计:AGENCE B
Ergonomist:EEC
Signals:Tabaramounien
City:Braud-et-Saint-Louis
Country:France
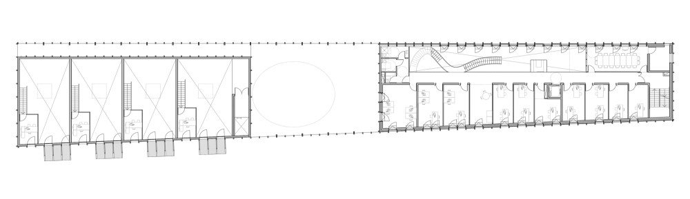
Business incubator including co-working space, meeting rooms, economic services of the community of communes, workshops, for about 40 entrepreneurs. The territory of the Estuary community of communes is part of an approach to promote innovation, particularly in the field of renewable energy. In this context, the new business incubator had to be a showcase building, attractive to entrepreneurs, and reflecting its vocation. The programme gives pride of place to the large common areas, and the project extends this desire through its design: the offices all look out over the park, to the south, and are accessible via passageways opening onto a full-height hall, encouraging emulation.
The building has been awarded the Effinergie+ label, proof of a genuine desire to minimise its energy impact. It benefits from natural ventilation, from the office windows to the south, to the main hall equipped with automatic doors controlled by the building management company.
To the south, the shell of the building is made of concrete, giving the project a mass that will enable heat to be stored in winter. An insulated wood-frame mantle limits thermal bridges by covering the whole building, sometimes used as insulation from the outside on the concrete, and sometimes being independent and structural to the north. The interior design gives pride of place to wood, with the use of varnished pine openwork battens in the walls and ceilings.
This interior cladding provides acoustic comfort in the hall and common areas. In the offices, the false ceilings are made of compressed wood fiber panels, a material with a low ecological footprint. In the lobby, the suspended privacy areas allow users to isolate themselves and enjoy a warm pine plywood cladding, which is also found in the alcoves of the shared workspace on the ground floor.
项目完工照片 | Finished Photos
设计师:CoCo architecture
分类:Cowork Interiors
语言:英语
阅读原文
客服
消息
收藏
下载
最近


















