查看完整案例


收藏

下载
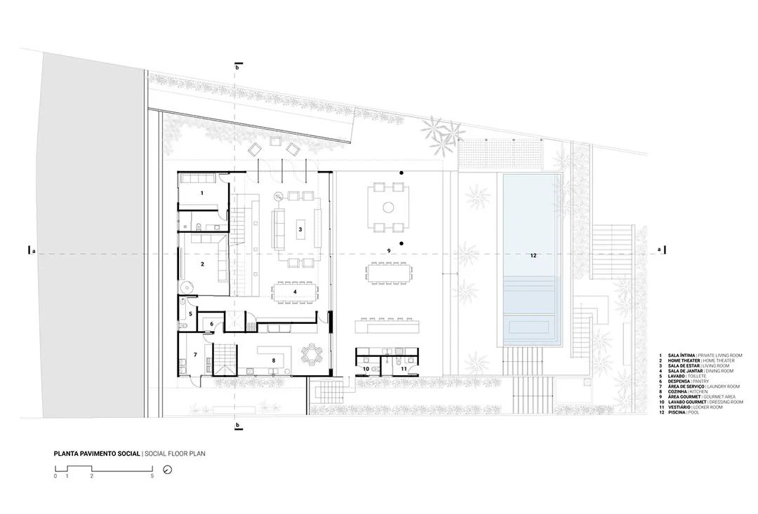
RZ住宅位于巴鲁里,建于落差超过17米的地形上,构思起来很有挑战。同时,场地拥有优越的视野。因此,该项目考虑了建筑、地形和景观之间的平衡和对立关系,体量有时可直接落地,有时则需要调整。考虑到地形不平坦,建筑在四个高度不同的平面上延展,延长的屋檐和虚实空间的关系使其水平方向的线条感得到增强,所以尽管体量有些碎片化,但金属和混凝土结构让它显得轻盈且流畅。
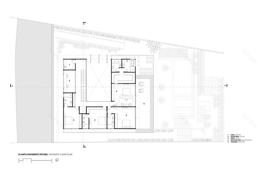
入口位于地势最高处,屋顶轻盈细长,车库区域和覆盖着呼应主入口铝板的街区成为了标志,混凝土门廊构成体量,向下延伸几乎接触地面。因此,入口以一种简约的方式呈现,确保了其余住宅楼层的隐私。RZ住宅的入口延伸到一条小路上,人们逐渐可以看到建筑的剩余部分,这里可以通向室外起居阳台,在阳台上可以看到周围美景。通过楼梯可以进入其他步道,这些楼梯以一种适应性和功能性的方式交织于所有楼层间,贯穿形成整个住宅延伸部分的路径。第一层楼梯通往私人楼层,墙壁为浅色和中性色调,由三间宽敞的套房、一间大型主卧套房和一间办公室组成。
建筑背面有较大的屋檐,因此可以在主人套房建造阳台。阳台是一个可以沉思的私人空间,长凳成为空间的隔断。较低楼层位于私人区域下方,包含了住宅的整个社交区域,客厅的通高天花板和一个拥抱自然的内部花园突出了这一点,并为住宅内部带来了生活气息,起居室也与美食区、家庭影院、私人客厅和更衣室相连。此外,公共通道也结合了厨房和洗衣房等服务区域。
自然材料之间的和谐与平衡,如木材、石材和混凝土,对于整个住宅的内部饰面至关重要,尤其是公共区域。中性的色调和木质饰面与混凝土相结合,营造了明亮和温暖的感觉,而家具的深色与RZ住宅中的金属结构有关。在整个概念设计的发展过程中,室内外之间的联系和整合必不可少。室外区域包括水疗中心和无边泳池,作为美食区的延伸,并呼应了周边环境。
建筑设计:Padovani Arquitetos
面积:950 m²
时间:2020年
摄影:Evelyn Muller
首席建筑师:Lucas Padovani
设计团队:Bruno Padovani, Raquel Azevedo, Israel de Marco, Victória Ribeiro, Fabio Wetten, Giovanna Verdini, Giovana Ferreira, Felipe Vedovello, Daniella Theodoro, Manoel Prieto, Isadora Aleixo, Ana Clara Lambert, Leonardo Martins, Renata Barros, Maria Antonia Mondelli, Isabel Recamon, Laura Zago, Gabriela Salvador, Marianna Cavalcante, Laura Lacerda, Angelo Montenegro, Gabriel Vidal, Cecília Sestari
混凝土结构:MAP Engenharia
金属结构:AM Arquitetura de estructuras
景观设计:Gilda Maldonado
照明顾问:Vertz
城市:Residencial Tambore
国家:巴西
客服
消息
收藏
下载
最近

























