查看完整案例

收藏

下载
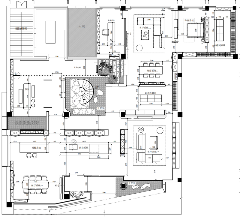
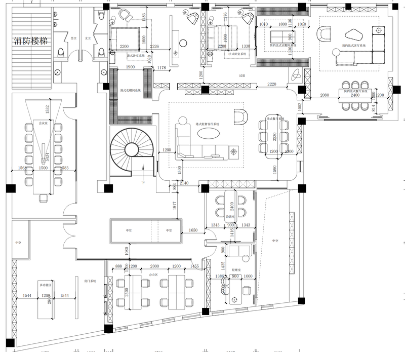
设计性质:展厅设计
设计模式:空间设计+产品设计
设计面积:1160m²
设计状态:完工
设计单位:H空间全案设计公司
依循FUROM品牌极简系列的调性与特质, 关于本次木作定制展厅空间的构造, 设计上没有进行华丽炫技, 而是以简约却极具高奢质感打造为产品做退让的空间
人在空间中穿越的过程本身就是一种漫游氛围触发想象,
以有限度地引导沉浸体验,
继而以真实空间的塑造唤醒身体和感官的知觉.
“高版本品质生活的现场感 总是先于时代之所见”,
动线节奏清晰,
空间收纳储藏功能 同时兼顾,
打造简洁独立的生活态度.
大面积的玻璃窗似乎也在为品牌欢呼,
引导外面游者视线,
同时也在为产品搭建一个能够自由表述的沉静场域,
靠墙式的餐边展示柜储物能力MAX,
一“柜”到顶的设计更具高级感,
错落有致的排列增加柜体的层次感.
以简为度,以奢为彩,
游走在经典与时尚之间,
在有限的空间里以多维度产品交叉去体现产品组织多展面的可能性.
墙面饰面组合、体块和产品的强大发挥,
让整个空间都有一种向外的张力,体现出品牌的大气和格调,
通过绿植的植入, 让艺术品与产品之间相互协调.
黑夜白昼轮替间,
有关于空间和身体的互动总在繁忙的日常中被忽略.
设计者希望用与自然四季更紧密的关系,
引导人更为惬意 放松的状态.
“我们随方向回旋前进,去寻找那未知的神秘”,
营造独特的空间氛围,
这种理念最终以弧线与曲面的几何形式表现出来,
立面设计上简洁、取消多余装饰,连接二层,
在空间上灵动且富于设计感.
FUROM自创业以来,只专注一件事,保持一颗敬畏之心,
书房展示区延续品牌“坚持·专注·敬畏”的理念,
整个空间尽可能去克制,
理性的氛围引导进入叙事与专注思考,
营造氛围的同时为书柜产品让路.
创设场景化生活化的空间状态,
弱化商业空间功利性,还原家的原貌,
透过视觉感官沉浸式体验产品的张力,
迎候中高净值人群所向.
壁挂衣帽间加岛台的设计 美观度和实用性更高,
设计也更加人性化,
根据客户的使用习惯和需求私人定制,
所创造的不一样的占据了衣帽柜的多样性.
客厅的惬意与舒适,
密切关乎到使用者的生活体验,
软饰组合兼顾居家与休闲,充满随性、惬意的温情.
卧室中置入步入式衣帽间,
呈现木皮与皮革,光滑与质感的对话,
如优雅气息在空间游走.
客服
消息
收藏
下载
最近























