知末
知末
创作上传
VIP
收藏下载
登录 | 注册有礼

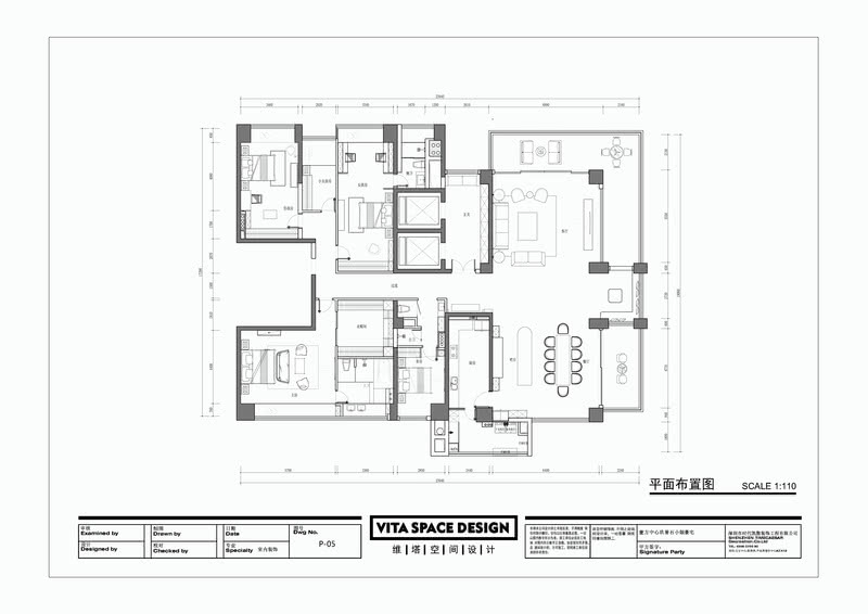
深圳宝安中心373m²现代简约法式风格家居设计

2019/12/23 11:54:29
查看完整案例
微信扫一扫
收藏
下载
项目坐落于深圳宝安中心,面积373m⊃2;,整体风格为现代简约法式风格。
色调采用咖色和白色搭配,地面颜色更加深一些。
墙面造型采用简约的法式元素,家具偏向法式和现代风格结合。
墙面材质是木饰面和墙布硬包,搭配米色莎安娜大理石、鱼肚白大理石,地面是瓷砖
深圳宝安中心373m²现代简约法式风格家居设计-4
深圳宝安中心373m²现代简约法式风格家居设计-5
深圳宝安中心373m²现代简约法式风格家居设计-6
深圳宝安中心373m²现代简约法式风格家居设计-7
深圳宝安中心373m²现代简约法式风格家居设计-8
深圳宝安中心373m²现代简约法式风格家居设计-9
深圳宝安中心373m²现代简约法式风格家居设计-10
深圳宝安中心373m²现代简约法式风格家居设计-11
深圳宝安中心373m²现代简约法式风格家居设计-12
深圳宝安中心373m²现代简约法式风格家居设计-13
深圳宝安中心373m²现代简约法式风格家居设计-14
深圳宝安中心373m²现代简约法式风格家居设计-15
深圳宝安中心373m²现代简约法式风格家居设计-16
深圳宝安中心373m²现代简约法式风格家居设计-17
深圳宝安中心373m²现代简约法式风格家居设计-18
深圳宝安中心373m²现代简约法式风格家居设计-19
深圳宝安中心373m²现代简约法式风格家居设计-20
深圳宝安中心373m²现代简约法式风格家居设计-21
深圳宝安中心373m²现代简约法式风格家居设计-22
南京喵熊网络科技有限公司 苏ICP备18050492号-4知末 © 2018—2020 . All photos and trademark graphics are copyrighted by their owners.增值电信业务经营许可证(ICP)苏B2-20201444苏公网安备 32011302321234号
客服
消息
收藏
下载
最近