查看完整案例


收藏

下载
Centro De Pesquisas, Universidade, África do Sul
设计师:Ludwig Hansen Architects, Urban Designers
面积:8548 m²
年份:2019
建造商:Federale Stene, Graphisoft, Gyproc Saint-Gobain, Kirk Marketing, KlipTite, Plascon, Polyflor, SIKA South Africa, Union Tiles
Arquitetos Responsáveis:Ludwig Hansen Architects, Urban Designers
业主:University of Mpumalanga
Gestor Do Projeto:University of Mpumalanga & GladAfrica Project Management
Construtor:Trencon
景观设计:kwpCreate
Engenharia Estrutural:SKCM Engineers
Consultor De Laboratórios:Safe-T
Quantitativos:SBDS Quantity Surveyors
Engenharia Civil:Delta Built Environment Consultants
Engenharia Mecânica:Aurecon
Engenharia Elétricaa:PLP Consulting Engineers
Segurança Contra Incêndio:Aurecon
Engenharia Sanitária:Delca Systems
Consultor Ict:Implementing IT
Consultor Av:Digital Fabric
País:África do Sul
设计师描述 | Designer description:
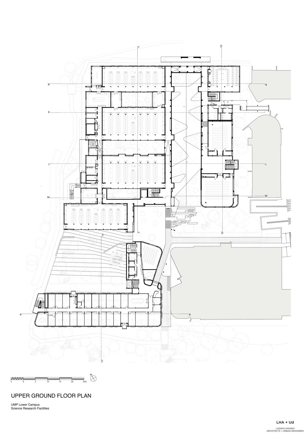
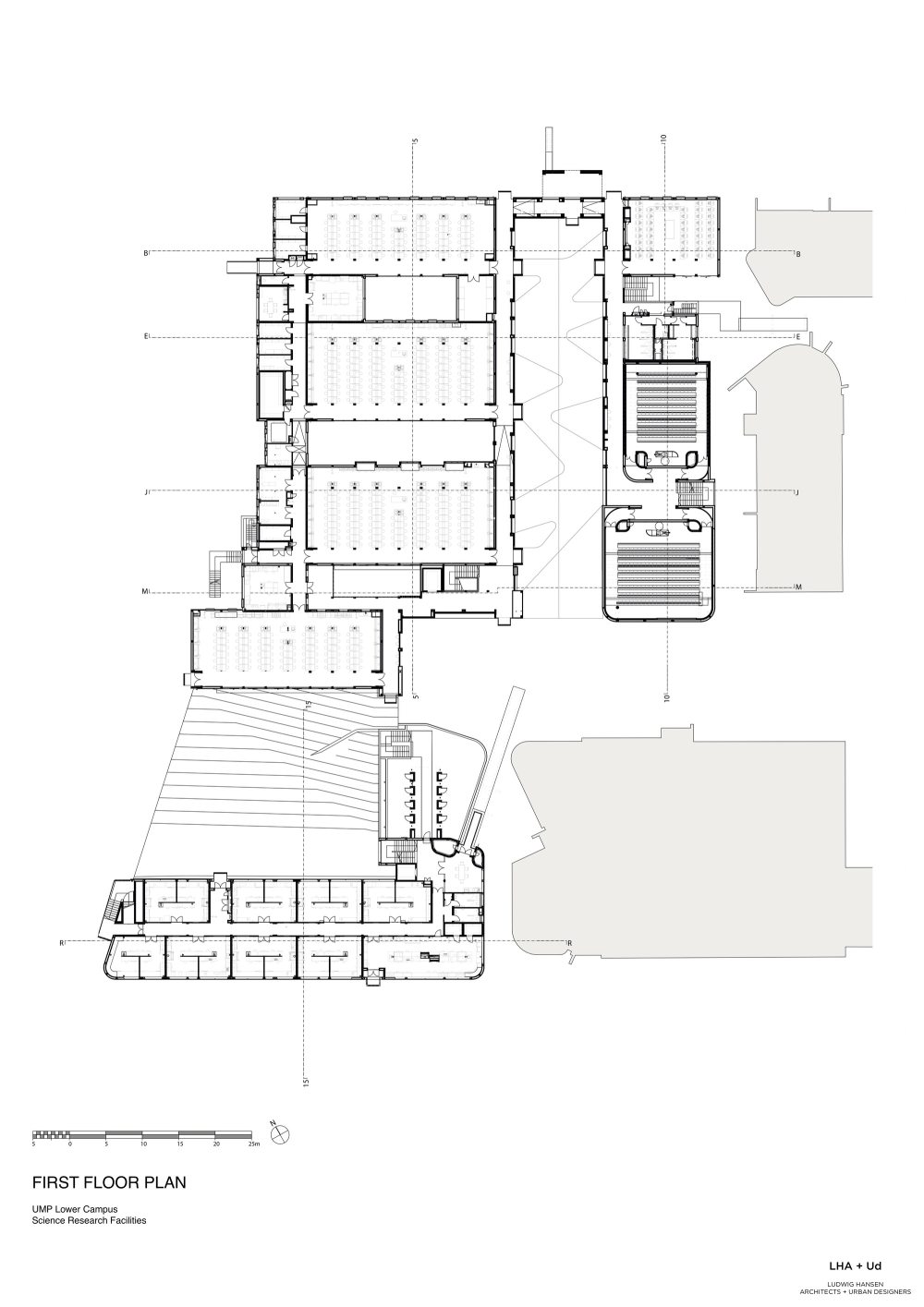
O Centro de Pesquisa Científica, projetado pela Ludwig Hansen Architects em parceria com o escritório Urban Designers, encontra-se situado no campus baixo da Universidade de Mpmalanga, na África do Sul. O edifício foi concebido para acolher 10 grandes laboratórios, incluindo novas estruturas para os alunos dos cursos de pós-graduação em pesquisa científica, espaços de ensino e áreas administrativas. Mpumalanga é uma região tropical localizada no leste do país, conhecida por sua paisagem natural exuberante e cercada por montanhas, encostas íngremes e um solo rochoso que costuma ser um grande desafio para os arquitetos que projetam por aqui. Pensando nisso, o edifício foi construído sobre uma antiga área de estacionamento desativada do campus, uma restrição muito bem-vinda uma vez que praticamente eliminou a necessidade de trabalhos de terra assim como limitou a área de projeção do edifício—resultando em um impacto mínimo na paisagem existente.
Procurando ressignificar as tradicionais práticas de ensino e pesquisa no contexto do ambiente acadêmico da Universidade de Mpumalanga, onde normalmente tudo é feito entre quatro paredes e portanto, longe dos olhos da maioria dos alunos, o programa do edifício foi segmentado de forma a incorporar uma série de pátios interiores acessíveis. Esta abordagem permitiu ao edifício respirar, proporcionando uma melhor integração entre os espaços interiores e exteriores, entre a arquitetura e a paisagem—aproveitando-se do clima ameno e da exuberante paisagem de Mpumalanga. Formalmente, o edifício celebra o seu programa, revelando-o ao público através de suas fachadas transparentes e abertas, criando um espaço generoso ao mesmo tempo que responde com sensibilidade aos requisitos climáticos e funcionais de um espaço de trabalho laboratorial eficaz.
Ao espalhar o programa do edifício pelo terreno, espaços de transição foram sendo criados, incorporando pátios, varandas e espaços semi-abertos—todos estes conectados através de passarelas cobertas abertas que circunda o pátio principal. O programa operacional dos laboratórios de pesquisa foram então distribuídos paralelamente ao eixo de circulação perimetral, expondo aos alunos e visitantes a natureza do trabalho em laboratório, democratizando o acesso ao conhecimento científico. Externamente, as generosas passarelas e espaços de encontro e socialização servem como uma espécie de convite aberto não apenas à comunidade acadêmica, encorajando as pessoas a permanecerem e, consequentemente aprenderem através da observação das práticas laboratoriais. Além disso, estes pátios intercalados foram concebidos como uma paisagem aberta, exibindo as prósperas micro-ecologias típicas de Mpumalanga.
A fonte de água subterrânea, descoberta durante o processo de construção do edifício, foi canalizada através de pequenos riachos escavados no pátio central, reforçando ainda mais a poderosa conexão entre arquitetura e paisagem. A paleta de materiais utilizados na obra é bastante singela, majoritariamente deixados em seu estado bruto e aparente:tijolos de barro, concreto e vidro. Os pisos, acabados em granilite polido, parecem fundir-se perfeitamente aos demais componentes do edifício, proporcionando uma sensação de continuidade espacial que permeia todos os espaços do edifício. Finalmente, portas e detalhes de marcenaria em madeira de lei de origem local dão um toque final bastante acolhedor ao ambiente—até certo ponto—austero dos laboratórios de pesquisa.
项目完工照片 | Finished Photos
设计师:Ludwig Hansen Architects
分类:Universidade
语言:葡萄牙语
阅读原文
客服
消息
收藏
下载
最近




































