查看完整案例

收藏

下载
构于境,襟于界
/延续当代语境下的极简建筑思路/
CONTINUING THE MINIMALIST ARCHITECTURAL IDEAS IN THE CONTEMPORARY CONTEXT
在布局在极简四方空间之下,
江城当代语境下的诗歌画卷,
缓缓铺陈之下。
"建築與空間是一種社會性藝術的形式,它雖然是凝固的,可在它上面蘊含著人文思想。"
——貝聿銘
"ARCHITECTURE AND SPACE ARE A FORM OF SOCIAL ART. ALTHOUGH IT IS SOLIDIFIED, IT CONTAINS HUMANISTIC THOUGHTS."
-PEI IM
在新时代语境下让传统对话当下,既是溯源回归,更是一种探索性的实践。
In the context of the new era, letting the traditional dialogue be present is not only a return to the source but also an exploratory practice.
項目名稱 ︱ 武汉国著上宸售楼处
Project The Polaris Mansion in Wuhan
室内设计 ︱ 深圳上森室内建筑设计有限公司
Design Shenzhen Shang Sen Design Interior Co., Ltd
主案设计|光贤虎、揭宇、张娜
Case Design X.H. Guang/Yu Jie/Na Zhang
項目業主 ︱ 招商蛇口 & 中国铁建
Owner China Merchants Property & CRCC
项目地点 ︱ 湖北武汉
Address Wuhan, Hubei Province
项目面积 ︱1314 m²
Area 1314 m²
完工時間 ︱ 2021年3月
Time Year 2021
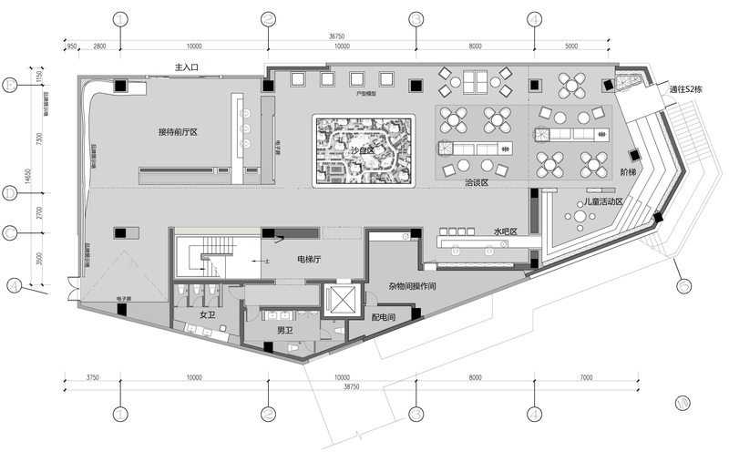
1F
2F
客服
消息
收藏
下载
最近
































