查看完整案例

收藏

下载
川菜小镇115户型样板间实景06
川菜小镇115户型样板间实景07
川菜小镇115户型样板间实景08
川菜小镇115户型样板间实景09
川菜小镇115户型样板间实景10
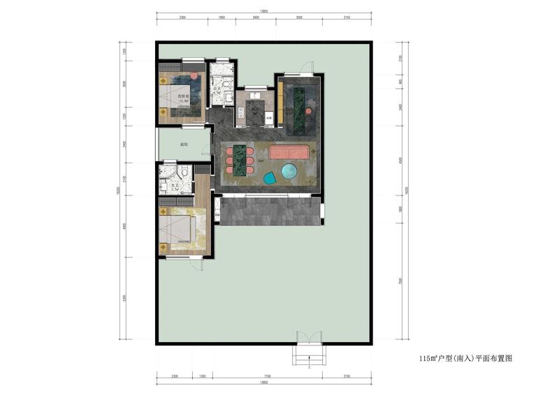
平面设计图
团队logo
115户型旨在营造一个融汇中西、缤纷活泼的空间。古希腊哲学家亚里士多德认为“美存在于秩序”,宋代大家苏轼认为“淡妆浓抹总相宜”,二者之间互相关联。本案正是基于二者的联系,钟情怀念传统文化和呼应西方文化的一种审美情怀。开放地运用色彩美学,大体块黑白灰与鲜明色彩的排列,构造出变化的动感韵律和秩序之美,融汇构筑生活艺术的美感。
在空间陈设上,我们期待这个空间能满足三口之家或家庭娱乐或交友会客等多种功能需求。在材料的运用上,尽量选择对生活环境造成污染较少的可再生材料,选择节能型的软装元素以减少浪费。
The 115m2 units are designed to create a colorful and lively space that combines the eastern and western aesthetic. As the ancient Greek philosopher Aristotle said, "beauty exists in order", while Su Shi, great poet of the Song Dynasty, believed that "make-ups, light or heavy, are always appropriate for beauties". Such believes are internally connected, and the 115m2 units are intrinsically based on this connection, seeking common grounds upon traditional Chinese culture and the western culture towards the understanding of art. In terms of color, the unit has large blocks of black, white and gray patterned with gaily colors in an insightful way. Such array showcases a dynamic rhythm of change and the beauty of order, which demonstrates the art of life.
In space arrangement, we hope this unit to meet diversified requirements and needs of households of three, such as entertainment and hosting friends and guests. And for materials, we maximized the use of renewable materials and energy-saving soft decoration elements so as to prevent pollution and reduce waste.
川菜小镇115户型样板间实景01
川菜小镇115户型样板间实景02
川菜小镇115户型样板间实景03
川菜小镇115户型样板间实景04
川菜小镇115户型样板间实景05
客服
消息
收藏
下载
最近














