查看完整案例

收藏

下载
让学生在自由探索与被尊重的空间内培养创新的灵性与开拓的思维。
我听到了,随后就忘了;
我看到了,也就记得了;
我做到了,就会理解了;
请帮助我,让我自己做。
——玛利亚·蒙特梭利
01
空 间 SPACE
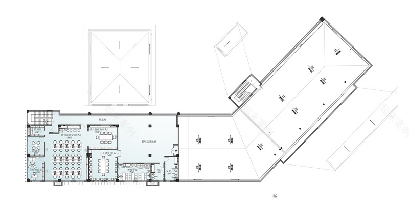
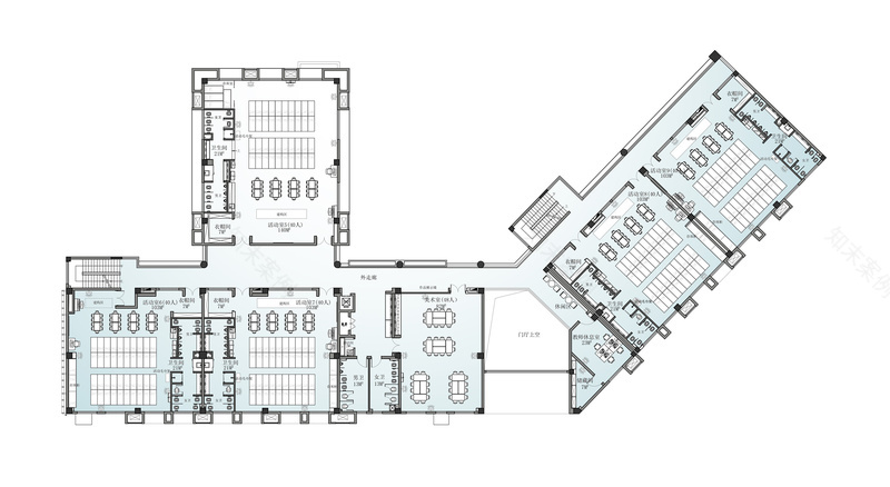
项目位于广东省中山市,占地面积3600m²,是梅沙教育重点打造的一所高品质、低造价的全日制双语幼儿园。设计师认为一所好的幼儿园是多维度的尊重与满足,项目旨在守护幼儿的安全,打造集体意识、自我意识成长场地,为孩子和老师带来全新的视角与空间体验。
幼儿园使用人员主要归纳为学生、老师、家长、运营这四类人群,所有活动主要围绕学生展开。为儿童而设计的空间应该是无限定定义并充满无限可能的,柔和的色彩、极简的设计、平静的氛围将建筑与环境融合。
敞亮的前厅作为幼儿园动线起点,可通往医务室、活动教室、图书室、美术室、音体室等功能区域。木制元素与白泥饰面相互交织,弧形木饰面跳跃的波浪线勾勒出孩子们童趣美好的模样。
教室是幼儿园的基本组成部分,除了适宜的规模与尺度外,灵活性、宜居性与可达性也是设计师关注的重点。教室采用木塑复合材料的地板,环保不含重金属,而且不含甲醛,比较贴近实木地板,可以让孩子们在这随意走动。
0-3岁的小朋友对新鲜事物,对周边异动有极强的好奇心。为了激发孩子们的创造力,美术室天花采用尽显弧度的圆与四方的铁格栅进行搭配,在这里,孩子们可以充分调动起自己的感官、尽情发挥想象力,在寓教于乐的氛围中学习成长。
02
色 彩 COLOR
孩子是最缤纷的色彩,但孩子的色彩分散,没有审美倾向,而设计师赋予空间的色彩是带有审美倾向的,能够通过环境的渲染影响孩子的审美观。
在幼儿时期,色彩对人的大脑发育与行为能力有着深远的影响。冷色系的空间可以让人感受到宁静,而暖色系的空间可以营造温暖的感觉或者让人产生兴奋的感觉。适当使用颜色可以激发孩子们的想象力,推动他们的认知和情感发展。
03
材 料 MATERIALS
幼儿园选材需注重安全性、艺术性、探究性,安全是第一,为幼儿园选材时,应选择无毒、无味、对幼儿无伤害隐患的材料。在保证安全的基础上,创造丰富且具备艺术性与探索精神的教育环境。
04
平 面 FLOOR PLAN
面对未来的教育生态传统的五颜六色卡通图案堆砌或者纯粹游乐场式的幼儿园已经过时新一代的幼儿园产品设计通过对空间的塑形创造出符合儿童特质的体验场所激发儿童的想象力与创造力充分尊重他们好奇的天性与灵性创造一个开放的、趣味的、充满活力的大环境一个寓教于乐的成长乐园让孩子们在这里学习认知自我、融入集体以及快乐成长
项目名称 | 中山万科·梅沙幼儿园
项目地址 | 广东中山
项目面积 | 3600m²
竣工时间 | 2021年3月
设计单位 | L.Y.D SPACE GROUP 矩合设计
主创团队 | 喻晶 刘沛然 徐启 苏馨蔚
业主单位 | 中山万科
客服
消息
收藏
下载
最近




















