查看完整案例

收藏

下载
新旧屋顶
拾叶斋
项目位于北京东城区内,周围是充满了浓厚老北京生活气息的胡同;业主是年轻的律师事务所,拥有一群蓬勃的青年人,充满新兴的朝气。
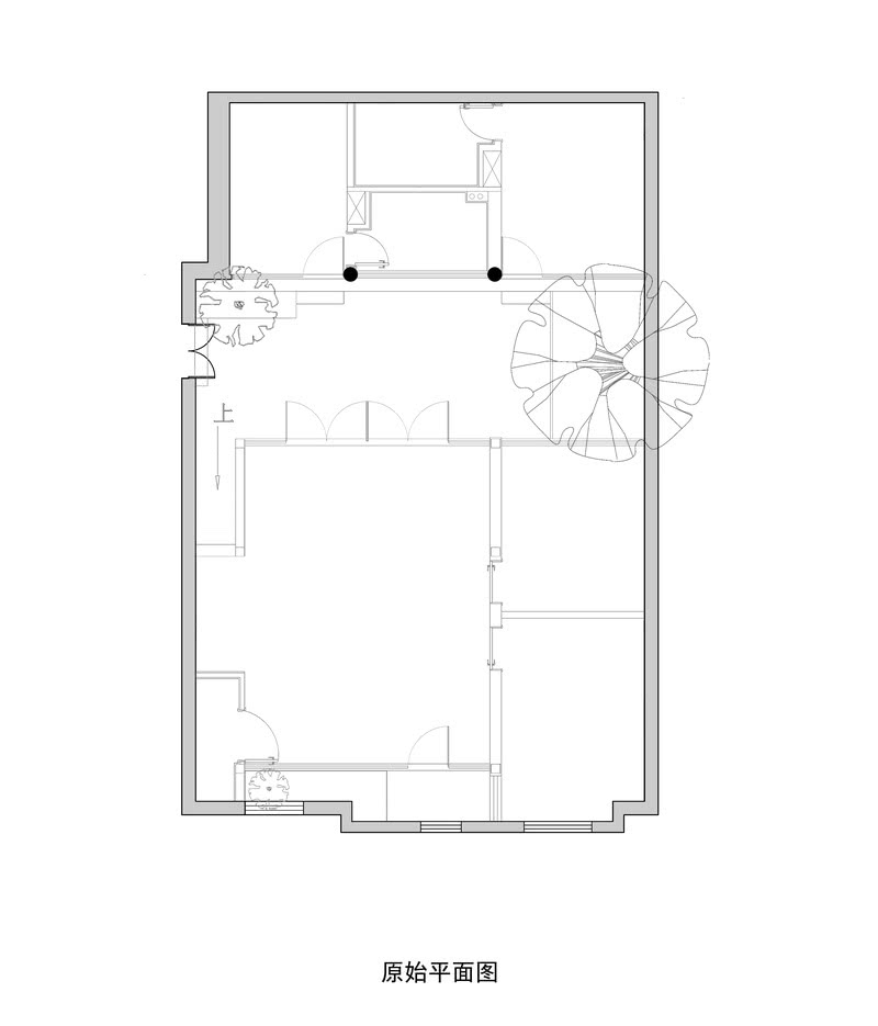
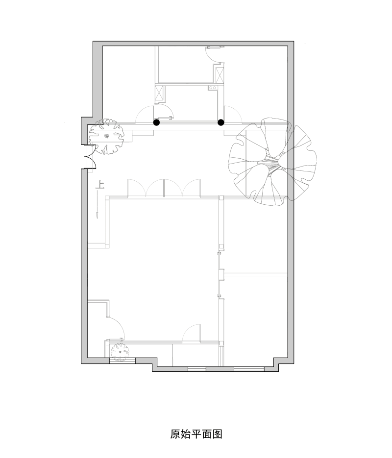
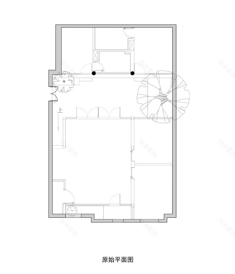
改造前整个院子由南北两房构成;朝着胡同的入口位于西墙上,东墙外是别家的院子。院内有两个露天庭院和两棵果树,南北房之间的庭院稍大,两棵果树都挤在这个庭院里,南房的南侧还辟出了一道狭缝庭院。场地局促,原有墙柱、室外庭院等更将使用空间划分得细碎零散。踏勘现场时恰逢冬季,反复穿梭于室内外之间极为不便,于是将两房并两庭院贯通为连续的室内空间成了最直觉的设计决定。
光的轴线
除了在入口保留部分室外空间,两处露天庭院都通过增设玻璃顶棚被纳入室内。玻璃顶棚的设计保证了室内充足的自然光线,加上南房本就有的一口天窗,三个自然光源形成一条南北方向的轴线,成为室内公共核心空间设置的依据。轴线上设置了三道可活动的隔板,隔板的关闭和开启,提供一系列不同尺寸和光照品质的空间,创造不同的使用状态。律所中至关重要两处洽谈空间被优先布置在了这个轴线的两端,既保证了洽谈空间的私密性,同时又能让两个洽谈空间拥有各自的光景。此外,办公区也得益于扩大了的室内,得以占据整个场地东侧,成为一个连续完整的功能分区。
石榴与枣树之间
改造中保留了庭院西边的小石榴树和东边的大枣树,两棵树的直接对立,让本就狭小的庭院更显紧张。改造后一系列不同透明度的玻璃将两棵树分隔开来了。小伙伴们从进入院子到落座工位,视线随着身体运动:跨入西墙上的院门后,转过石榴背靠的磨砂玻璃,进入大厅可以透过玻璃顶棚望见枣树的巨大华盖,绕过悬浮的半透明玻璃盒隔断,最后来到开放工位区,占据了中心工位的枣树树干穿过玻璃顶棚,将视线再一次引到室外,引向天空。另一条从石榴到枣树的路径是在入口庭院右拐,背对石榴上到二层的休憩平台,再转身移步到玻璃顶棚与枣树覆盖之间。这一系列视线和身体的运动,拉长了石榴和枣树的距离,使原本逼仄的东西向变得深远,空间也随之被放大。
树律师
业主希望为事务所营造家的亲切感,两棵树的存在无疑为此提供了重要的尺度参照:大树亭亭,是家的遮蔽;小树近在咫尺,如家中盆栽。小院虽几经易主,几经改造,但枣树与石榴却是此刻院子里最长久的守护,见证过这里曾经的生活。如今,入口庭院的尺度与石榴树相适,开放工位以枣树的位置作为核心。这些新的功能空间是围绕树的存在而展开的,但感知到的却分明是树被精心安放在了合适的“岗位”上,无论是入口迎宾的石榴,还是拥有自己工位的枣树。树因此被赋予了一种与人相关的生命感,而人也吸纳了树,成为其工作生活的一员。
律所与诗意
庭院虽被纳入了室内,但树依然在“野外”;树虽在野外,但其存在始终能在室内被体验:或是入口扑面而来的石榴枝丫,或是透过磨砂玻璃依然可见的石榴树影,或是透过玻璃顶棚瞥见的枣树树冠,抑或是隐约可见的半透明玻璃盒后,在工位上的枣树树干,以及秋冬落在玻璃顶棚上的树叶和果实。这些被建筑和肉眼捕捉的树的一切,给严谨的律师工作场所平添了些许生活的诗意,于是名曰:拾叶斋。
Pavilion Green
The project is located in Beijing Dongcheng District, surrounded by alleyways full of a strong and old Beijing life style. The client is a newly founded law firm, with a group of spirited young people.
Before transformation, the whole quadrangle is composed of two rooms in the north and south. The entrance is open on the west wall. Outside of the east wall is another quadrangle. There are two open courtyards and two fruit trees in the quadrangle. The courtyard between the north and south rooms is larger, and those two fruit trees are crowded in this courtyard. The other slit courtyard is carved out on the south edge of the south room.
The site is tight, the original walls, columns, outdoor courtyards divided the entire space into pieces. In winter, it would be very inconvenient to shuttle between indoor and outdoor. Therefore, the most intuitive design decision is to integrate the two rooms and two courtyards into a continuous interior space.
A light axis
Apart from preserving some outdoor space at the entrance, the two courtyards were incorporated into the interior through an additional glass ceiling. The design of the glass ceiling ensures sufficient natural light into the interior. With the existing skylight in the south room, the three natural light sources form a north-south axis, which becomes the basis for establishing the core indoor public space. Three movable partitions are arranged along the axis. The partitions provide a series of different size spaces and different lighting qualities, allowing different modes of occupation. Two of the most important negotiation spaces in the law firm are prioritized at both ends of the axis, which not only ensures the privacy of the negotiation space, but also enables them to have their own light source. In addition, the office area also benefits from the enlarged interior, it occupies the entire east side of the quadrangle and becomes a continuous and integrated functional zone.
An in-between space
The small pomegranate tree on the west side and the big jujube tree on the east side of the courtyard were retained in the reconstruction. The direct opposition between the two trees made the narrow courtyard tenser. Designers separated these two trees by a series of glazing with different transparency. From the entrance to any work seat, one’s sight changes as the body moves. Entering the west gate and bypassing the frosted glass, one enters the hall and sees the big canopy of the jujube tree through the glass ceiling. After bypassing the suspension of the translucent glass box of partition, one finally comes to the opening work space. Occupying the key seat, the jujube tree trunk guides one’s view to the outside and into the sky.
The other route from the pomegranate tree to the jujube tree is to turn right in the entrance courtyard and come to the second floor of a resting deck, and then turn around and walk between the glass ceiling and the jujube tree cover. This series of sights and body movements lengthen the distance between pomegranate tree and jujube tree, making the originally narrow courtyard profound, and the space larger.
A tree lawyer
The client hopes to create a sense of intimacy for the office, and the existence of two trees undoubtedly provides important reference for this scale: the big tree shelters the home, and small trees exists as a piece of furniture. Although the quadrangle had changed its owners and been transformed several times, the jujube tree and the pomegranate tree are the most long-term guardians that have witnessed the history of the courtyard.
Today, the scale of the entrance matches the size of the pomegranate tree, and the location of the jujube tree is at the core of the open work space. These new functional spaces are arranged around the trees, yet the perception is that the trees have been carefully placed at the right "position". Trees are thus endowed with a sense of life related to people, and people take the trees to become a member of their work and life.
A poetic firm
Although the courtyard is incorporated indoors, the trees are still "wild", yet they could be perceived from inside. The pomegranate branches at entrance, the pomegranate tree behind the frosted glass, the jujube tree canopy through the glass ceiling, the jujube tree trunk behind the translucent glass box, or the leaves and fruit fallen on the glass ceiling. All this that have been captured by building or the eyes, becomes poetry to the rigorous workplace. Therefore, it is called Pavilion Green.
原始平面图
工作模式 01
工作模式 02
活动教育模式
大型会议教育模式
展览模式
平面动图
图解
图解
图解
图解
图解动图
剖面
大厅
大厅
会议区
办公区
办公区
会议区
会议区
洽谈室兼休息室
入口庭院
洽谈室兼茶室
枣树工位
入口门头
客服
消息
收藏
下载
最近




























