查看完整案例

收藏

下载
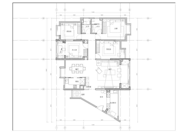
空间以简洁质朴为核心设计理念,意在营造一种简洁、干净、纯粹,利用白线勾勒块面切割,大小对比,令空间更丰富又不具有太强符号性.墙面空间转折利用剪力墙与大梁位置框选不同材质围合与功能相结合,房间主要以硬包墙布为主连接天花框选睡眠区域的归属感。整个空间材质为天然的石材 木头 金属 硬包 涂料 玻璃
With simplicity as the core design concept, the space aims to create a kind of concise, clean and pure. The white line is used to outline the block surface cutting and size contrast, so that the space is more abundant but does not have too strong symbol.
The wall space transition uses the shear wall and the beam position frame to select the different material to enclose and combine with the function,
the room mainly uses the hard wall cloth to give priority to connect the ceiling frame to select the sense of belonging in the sleeping area. The whole space is made of natural stone, wood, metal and hard coated glass
客服
消息
收藏
下载
最近




















