查看完整案例

收藏

下载
海峡文化艺术中心由多功能戏剧厅、歌剧院、音乐厅、艺术博物馆、影视中心和联结它们的中央文化大厅组成。其设计有以下特点:
1、设计理念国际化和地域性的统一;
2、室内外的高度一体化设计与标准化设计;
3、中国材料的运用与创新;
4、与城市融合、为市民服务;
海峡文化艺术中心是一座中国的现代主义建筑,通过对中国文化的提炼,形成世界语言。其设计灵感来源为福州市的市花——茉莉花。陶与竹是塑造“茉莉花“的主要材料。幕墙设计采用了陶棍和陶板,海峡文化艺术中心项目是目前世界上最大的陶制幕墙建筑。室内设计材料采用了竹材和艺术陶瓷。
海峡文化艺术中心项目与城市景观系统、防洪系统融合,通过茉莉花广场、屋顶平台、沿河步道等,为普通市民提供了非凡的体验空间。
海峡文化艺术中心鸟瞰图——水月江天茉莉花
海峡文化艺术中心鸟瞰图
海峡文化艺术中心茉莉花广场视角
海峡文化艺术中心茉莉花广场喷泉视角
海峡文化艺术中心建筑幕墙
海峡文化艺术中心建筑单体端部及夜景
海峡文化艺术中心螺旋楼梯与建筑
海峡文化艺术中心室外立体交通核心——”眼睛“
螺旋坡道、螺旋楼梯、屋顶与建筑
海峡文化艺术中心多功能戏剧厅
海峡文化艺术中心多功能戏剧厅前厅
海峡文化艺术中心歌剧院观众厅——茉莉缠枝
海峡文化艺术中心歌剧院观众厅楼座视角
海峡文化艺术中心音乐厅——牡丹缠枝
海峡文化艺术中心音乐厅——管风琴
海峡文化艺术中心彩色总平面图
海峡文化艺术中心总平面图
海峡文化艺术中心首层组合平面图
海峡文化艺术中心二层组合平面图
海峡文化艺术中心建筑A多功能戏剧厅首层平面图
海峡文化艺术中心建筑A多功能戏剧厅3.800层平面图
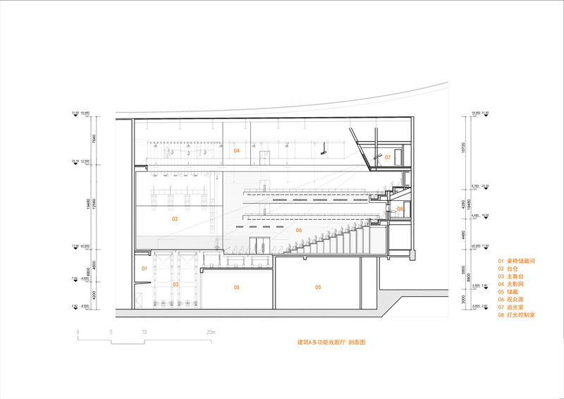
海峡文化艺术中心建筑A多功能戏剧厅剖面图
海峡文化艺术中心建筑B歌剧院首层平面图
海峡文化艺术中心建筑B歌剧院8.900层平面图
海峡文化艺术中心建筑B歌剧院16.700层平面图
海峡文化艺术中心建筑B歌剧院剖面图
海峡文化艺术中心建筑C音乐厅首层平面图
海峡文化艺术中心建筑C音乐厅4.900层平面图
海峡文化艺术中心建筑C音乐厅剖面图
海峡文化艺术中心建筑D艺术博物馆首层平面图
海峡文化艺术中心建筑D艺术博物馆4.000层平面图
海峡文化艺术中心建筑E影视中心首层平面图
海峡文化艺术中心建筑E影视中心7.000层平面图
海峡文化艺术中心彩色立面图01
海峡文化艺术中心彩色立面图02
典型陶瓷幕墙外檐研究图解
典型陶瓷幕墙外檐剖面研究
典型陶瓷幕墙挂板平面与剖面研究
典型陶瓷幕墙挂板剖面与细部研究
陶瓷幕墙转角细部研究
太阳能辐射与百叶设置研究
典型后墙外檐覆板细部、立面、剖面研究
歌剧院茉莉缠枝艺术陶瓷母题构成研究一
歌剧院茉莉缠枝艺术陶瓷母题构成研究二
歌剧院茉莉缠枝艺术陶瓷母题构成研究三
歌剧院茉莉缠枝艺术陶瓷母题构成研究四
歌剧院茉莉缠枝艺术陶瓷母题构成研究五
歌剧院艺术陶瓷整合及安装方式研究一
音乐厅牡丹缠枝艺术陶瓷纹样提取
音乐厅牡丹缠枝艺术陶瓷母题生成研究一
音乐厅牡丹缠枝艺术陶瓷母题生成研究二
音乐厅牡丹缠枝艺术陶瓷母题生成研究三
音乐厅牡丹缠枝艺术陶瓷母题生成研究四
音乐厅墙面肌理与声学设计研究
客服
消息
收藏
下载
最近
























































