查看完整案例

收藏

下载
项目位于河北廊坊文安县,定位为家庭度假和生态康养主题。设计师以中式园林为风格,木饰面为基底,让优美的自然背景与浓厚的东方意境相结合。
中式元素大量应用于室内。茶室的多格子背景灵感来源于传统药铺的药柜;书房中的挂画与两边柜子的厚度形成对比,强调了中式风格里的“对中”手法。会客厅中的壁炉,石材采用称为”山水画’的原料,石材中的特殊纹理浑然天成的演绎了山水之景。
传统中国美学中讲究动静结合的平衡。茶室与书房共同营造了一股静谧的氛围,在会客厅的另一侧,瑜伽室、品酒室提供了一处活动区,业主可在此强身健体,也可细品美酒带给味蕾的享受。动与静在此即相对独立,又形成和谐对比。
The project is located in Wenan County, Langfang, Hebei, with the function of family vacation and ecological health center. The designers combine traditional Chinese garden style and wood veneer to create a space containing natural scene and oriental artistic conception.
There are number of Chinese elements used in the interior decorate. The multi-lattice background in the tea room is inspired by the medicine cabinet of the traditional medicine shop. The wall paintings in the study room contrast with the thickness of the cabinets on both sides, highlighting the ‘centering’ technique in the Chinese style. In the living room, the stone material of fireplace is named ‘landscape painting’ because the special texture in the stone naturally interprets the scenery of the landscape.
The balance of dynamic and static is emphasized on the traditional Chinese aesthetics. The tea room and the study room create a graceful and serene atmosphere. On the other side of the living room, the yoga room and the wine room provide an vitality area, where the resident can keep fit and enjoy the taste buds experience.
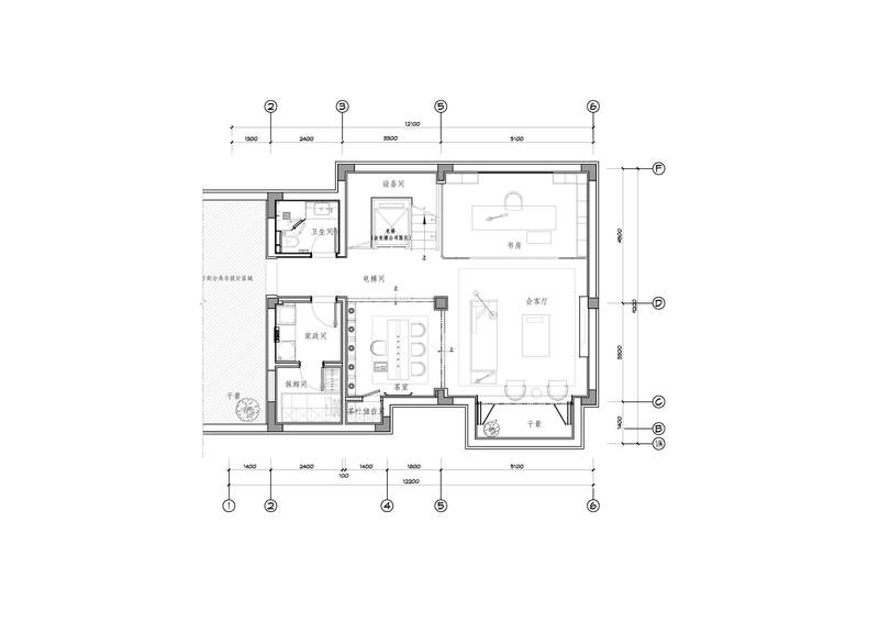
负一层平面图
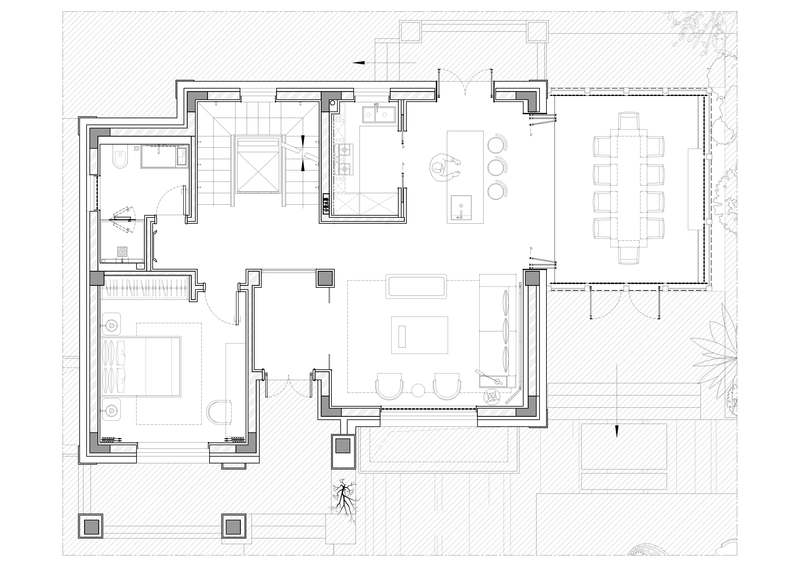
一层平面图
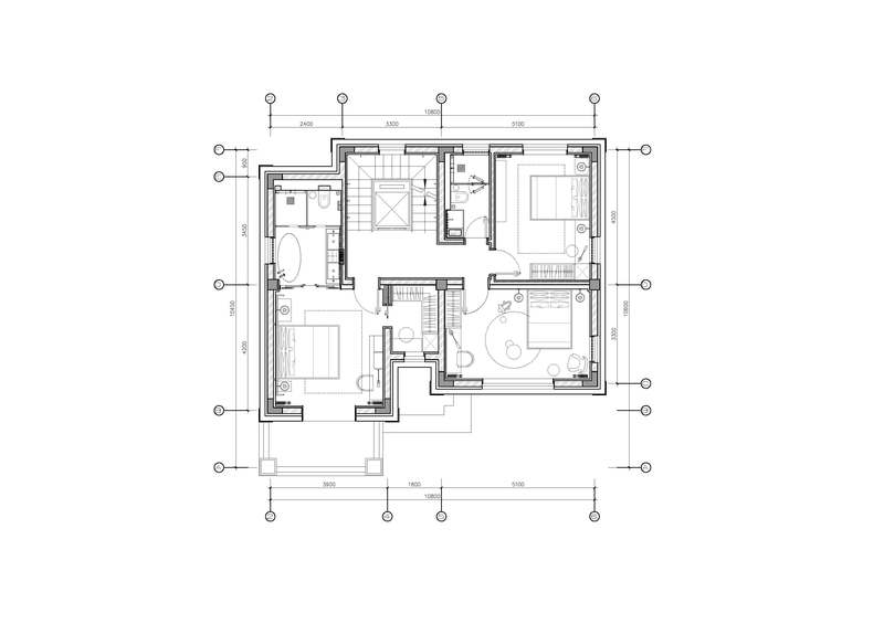
二层平面图
阁楼平面图
客服
消息
收藏
下载
最近

























