查看完整案例

收藏

下载
接待大厅
沙盘区
沙盘区
洽谈区
洽谈区
水吧台
水吧台
会所区
儿童区
儿童区
楼梯
楼梯
空间流线由景观廊道引入,接待大堂的墙体如银杏树干骨架向中间伸展抱合,万物生长的气息撑满整个大厅,对称的空间形式使前场空间的仪式感跃然纸上,银杏树装置增添了空间的灵性,更促进了人与室内空间的情感交流,层层递进,意蕴无穷。
楼梯区
在元素的重组设计中,设计师打破传统的理念与束缚,银杏叶表面一丝一丝的脉络为肌理,将这一想法融入在柱体造型当中。用抽象的思维,创造空间与视觉上的虚实感受,在原有基础上进行再创作,在营造空间感受的同时,又激发观者的无限想象。
二层平面
户外区
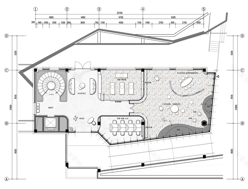
一层平面
负一层平面
客服
消息
收藏
下载
最近



















