查看完整案例

收藏

下载
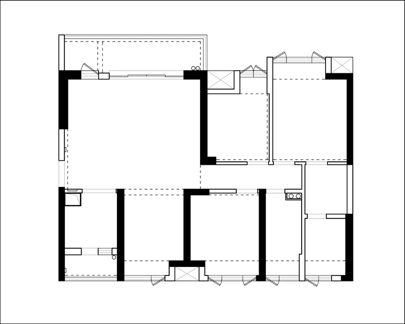
Before
空间整体结构相对完整,只需对局部进行调整。
l 客厅吊顶天花装饰过于累赘,将整体层高压低。
l 走道狭长,造成视觉障碍。
l 厨房空间局促,收纳不足。
l 衣帽间空间利用率不高,收纳空间不足。
After
l 客厅吊顶天花全部拆除,采用墙裙和简洁的PU线条相结合,在拉长层高的制造出复古的效果。
l 将书房靠近走道的墙壁打通,用一扇折叠黑框玻璃门代替阻隔,在视觉效果上缓解走道狭长的缺陷.
l 厨房与小型生活阳台打通后,厨房的空间局促得到改善,且增加了收纳空间,真正解放了爱好收集餐具的L小姐。
l 合理利用多余空间,调整了主卧厕所的进门位置,大大提高了衣帽间的空间利用。
l 打通阳台与客厅之间,采用大面积的落地窗,打造出窗明几净的效果。
改造前的精装房客厅的吊顶天花让令个空间显得呆板、拘束。
设计理念: To create something amazing and don’t forget to live. 创造美妙的事物并且不要忘记生活。
软装初步设计: 采用的是现代法式结合小复古的风格,利用简洁的线条刻画出法式复古的韵味。
客厅草图
客厅 视觉线条感 早期的法式崇尚繁复奢华与冲突之美,主要体现在墙面与吊顶上的雕花图腾及线条上,同时在设计的基础上讲究心灵的自然回归感,给人一种扑面而来的浓郁气息。而现代法式则在一定程度上承袭了法式优雅的线条感,利用墙壁上的线条形成视觉重点,两者相对比之下后者在视觉空间上显得更加简洁。
通过各种配件将整个家营造出这种浓厚的氛围,即使是在毯子上看书的一个来自森林的鹿系少女也显得气质独特,一字一句看得专注,因为书里有鹿有虎,还有你。
客厅草图
大型落地飘窗让阳光无处可藏,特地采用搭配纱质窗帘让整个空间简洁干净与复古色调持恒。
原木色鱼骨拼地板与墙面的PU线条提升空间的复古感。
客厅 一角 即使是客厅的小角落,软装设计师也为其精心选择了具有设计感的辅助灯特地选用暖光灯系,灯光照射在绿植上,将客厅角落的空间色调糅合。
原始餐厅
餐厅草图
餐厅透露出来生活的气息
原始厨房
打通后的厨房结构发生了很大的变化,在保证空间均衡与视觉效果的情况下把收纳发挥至最大。白色橱柜和胡桃木色艾格板是不出挑的搭配,却富含质感。
主卫草图
主卫采用金色与粉色的搭配,就如同小女孩儿时的梦中婚礼,甜蜜而美好,为避免过多的粉色带来的甜腻感我们适度在空间做了留白处理。
公卫草图
对于客卫而言,干净和利落无疑会给客人留下很好的印象,所以我们选择了明亮的冷色系,以追求洁净之感,冷色系也会从视觉上增大空间感。
原始主卧
主卧草图
次卧采用了蓝色和灰色配对,经典的颜色搭配让空间展现出一种宁静的优雅。
看看大自然。当选择完美的灰色和蓝色配对时,你可能会在户外找到答案。在这个房间里,蓝色的蔚蓝色 - 基本上是美丽的夏日里天空的颜色 - 和鹅卵石般的灰色是完全呈现互补的状态。
原始书房
书房草图
书房家具以活动的形式摆放,为未来改造成小孩房预留了充足空间。
原始阳台
L小姐对阳台的需求:不封闭阳台,目前有两个阳台(一大一小),需要一个做生活阳台放置洗衣机等生活用品,一个做休闲阳台,休闲阳台放绿植和休闲椅。 在反复沟通和确定之后,我们对这两个阳台做了合理性的规划。在空间有限的情况下,设计师认为拥有两个生活阳台是一种空间上的浪费,我们为何不将空间利用发挥至最大?所以设计师将需求归纳后对空间进行重组,决定舍弃其中一个小阳台。 为了弥补厨房的收纳及空间缺陷,将小的生活阳台与厨房相互打通,扩大厨房的使用面积,最大程度的满足了L小姐放置生活用品的需求。 保留了相对较大的休闲阳台,考虑到该阳台处于半室外的状态,设计师采用防腐木定制柜并且将洗衣机收纳其中并且满足了绿植与休闲椅的需求。
随意的坐姿都能构成一幅写实油画,这才是一个追求精神层面与内心世界丰富的家。
客服
消息
收藏
下载
最近






















































