查看完整案例

收藏

下载
古新郑历经千年时光流逝,作为中华民族与华夏文明最早的发祥地,更是中华第一古都,而香蔓庭销售中心坐落于此,有着源远流长的文化背景,再配以灵动、柔和的圆弧及大色块作为贯通主题的视觉元素,使得本应平平无奇的建筑,仿佛时尚走秀台的模特一样,身穿红色的衣服行走在时尚的最前沿。设计选以极具艺术的雕塑及饰品辅以空间的点缀,高品质的气质魅力无处不见。如此独特且惊艳的氛围营造出轻透灵动的气息,让每一位踏入进来的宾客都情不自禁的去记录这愉悦的场景,分享给亲朋好友,毕竟,美好的东西我们都发自内心的钟爱。 色块碰撞,立面的纯粹与干净,承载历史余韵,纳时间空间各异的美学元素杂糅于此。 一面方正一面自由,在传统的规矩与均衡之中,吊灯与雕塑创造流动的自然之美。两者相映之间,每一隅都是风景,相映成趣,别具一番俏皮轻松。 艺术不是堆砌所有美好的作品,而是恰到好处的蓝,亲近又自然,空间里和谐之下无一处多余。
沙盘区
接待区
洽谈区
深洽区
深洽区
VIP室
儿童区
儿童区
水吧区
水吧区
水吧区
销控台
二层通道
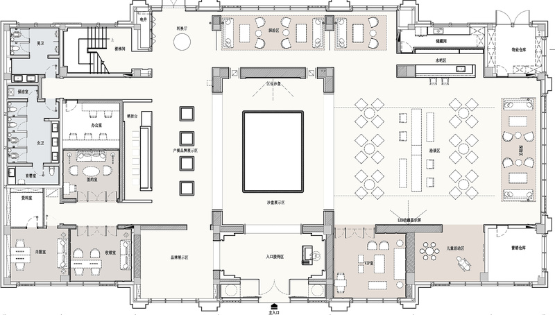
一层平面图
二层平面图
客服
消息
收藏
下载
最近

















