查看完整案例

收藏

下载
地点:江苏无锡
开发商:华侨城地产
建筑设计:柏涛建筑设计(深圳)有限公司
设计主创:赵晓东
设计团队:朱维吉、吴超、王江伟、林蓉蓉、胡俊雄、蔡志豪、杨朝杰、李佳红
设计部门:设计四部
实景照片:华侨城地产、张学涛
用地面积:25440 ㎡
建筑面积:1142.25 ㎡
现代语言诠释传统元素
城心之上,
回归东方院落之意境,
运河湾畔 · 畅享城市之美
01 项目背景与愿景
“ 现代的语言诠释城市记忆和复兴 ”
项目位于无锡市中心老城区—梁溪区,梁溪区是无锡市政治、经济、文化中心,京杭古运河从中穿过并分流, 形成整个运河上唯一的回环。
基地位于城市转角,北临高速高架桥,南靠城市公园,在这样的环境下,希望用现代的语言融入传统院落的概念,以一种崭新的姿态作为历史和文化的载体,寓意承载着城市记忆和复兴!
02 设计理念
“ 现代手法与传统元素的置换 ”
▲建筑生成图
▲结构分析图
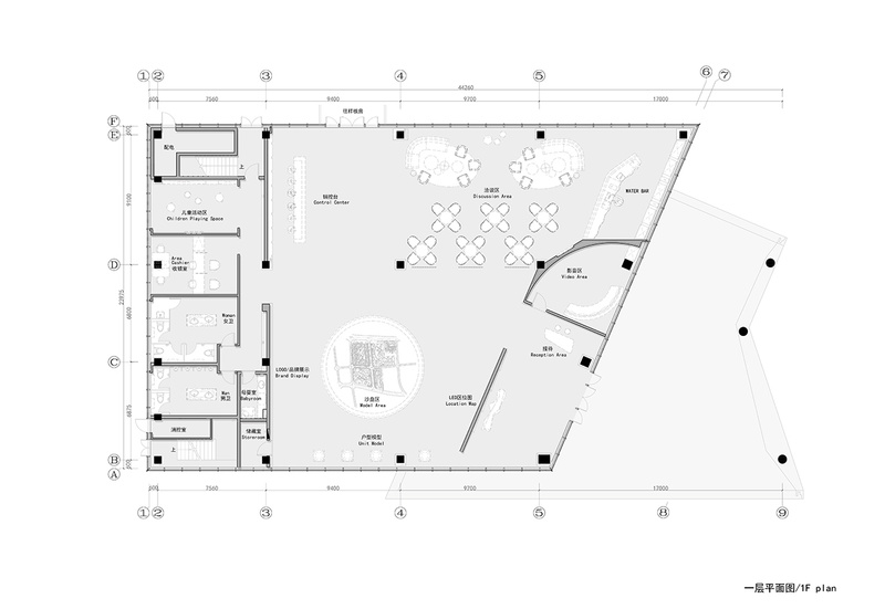
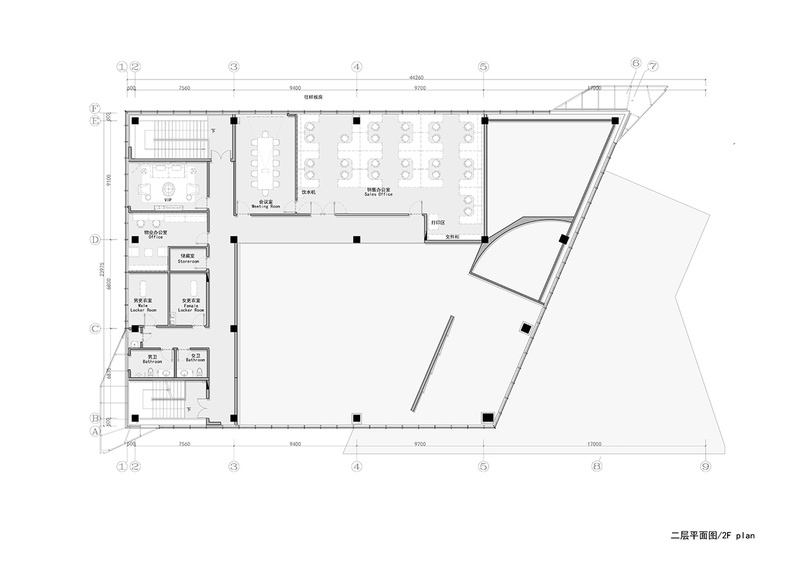
03 立面与空间
“ 如入诗境,建筑和环境的完美融合 ”
君到姑苏见,人家尽枕河。古宫闲地少,水港小桥多。
夜市卖菱藕,春船载绮罗。遥知未眠月,乡思在渔歌。
——杜荀鹤《送人游吴》
▲沿街透视图
方案提取现代简洁的折线元素,以双板相扣形成有趣灵动的建筑体块关系,纯粹而简洁的形体,在错动中取得平衡。水面的倒影与折板的硬朗形成强烈对比,塑造刚柔并济的视觉效果。折板与建筑主题之间形成相互渗透的共享院落,建筑与环境在此完美融合。
▲广场透视图
当夜幕低垂,晶莹剔透的落地玻璃,与大尺度的白色铝板在灯光的折射中熠熠生辉,映衬着前场的水面,一虚一实,一动一静,恍若自成一体,纯粹而灵动。
▲广场透视图
设计通过斜向入口增强昭示感。入口景观呈倒三角形式,打造绿化与水景相结合的关系,使游人在行走中产生步移景异的感受。沿着木色格栅,沐浴自然光影闲庭信步,且行且驻,都是一种充满仪式性的感知和禅意体验。
▲门庭透视图
冬去春来,云卷云舒,树冠透过孔洞延伸出天空,去寻找阳光与雨露。框景窗洞,清新又富有活力,给人一种春意盎然的感觉。一方庭院,是室内和室外空间的完美结合,相互补充,建筑与自然在这里和谐对话。
▲门庭透视图
水面的波光和斑驳的树影仿佛是流动的时光。庭院、景观倒映在水面和落地玻璃上,一虚一实,视线、光线的变换表现出静态的动感,演绎着光影与时间的故事。
▲白色折板
白色折板的简洁纯净,将线与面进行艺术结合的尝试,也是对“简约”精神赋予更高视觉冲击,白色调、折线形的构造,细微的角度变化都影响着光影效果,婆娑树影筛星月。纯粹的建筑更勾勒丰富的环境,展现现代社区生活的临场感。
▲景观营造
04 材料细部与完成度
“ 线脚精致的折板框架”
▲效果图
▲墙身大样
05 室内空间
“ 打造精致、简约、大气的空间场所 ”
▲入口前台
光的呈现与隐匿,一直是设计中必须考量的因素。入口前台延续现代简约的理念,追求精致细腻。不需要太多修饰的东西,简洁,明亮,即足以给人简约大气的感觉。
▲入口大堂
两层通高的空间顶部开设天窗引入自然光,配合室内灯光照亮整个空间,视觉所及的各个角落达到了均匀、柔和、舒适而富于变化的光环境,营造出端庄大气的氛围。
▲室内休息区
客服
消息
收藏
下载
最近

































