查看完整案例

收藏

下载
本项目是南宁市西乡塘区的重点旧改项目,在原南宁棉纺织厂的原址上构筑一个集高端住宅、配套生活馆与公寓楼为一体的现代城市居住社区,有力助推西乡塘区城市面貌的更新。
“一馆两用”-营销中心既是项目销售场所,也是未来的社区邻里中心,实现了建筑的功能灵活转化和可持续性。
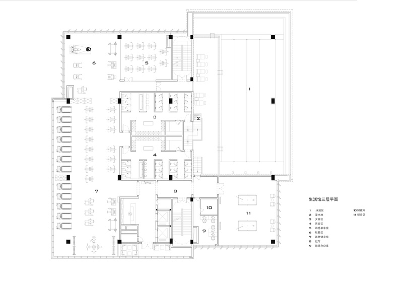
“开放泳池”-设计改变了将泳池放在屋顶层的传统思路,结合形体构成出现在建筑的中部,使邻里中心成为视觉聚焦点,实现社区开放的同时提升了社区凝聚力。
This project is a key renovation project of Xixiangtang District in Nanning. On the original site of the former Nanning Textile Factory, a modern urban residential community integrating community commerce and apartment buildings will be built to help Xixiangtang District renew the appearance of the city.
“Sustainable Building” – Sales Center is both a project sales place and a future community center, which realizes the flexibility and sustainability of the building.
“Open Pool” – Instead of the traditional way to put the pool on the roof floor, it is set in the middle part of the building in accordance with the geometric composition. It will make the community center a visual focus, and enhance the community cohesion through opening up the community.
实景照片
实景照片
实景照片
实景照片
总图
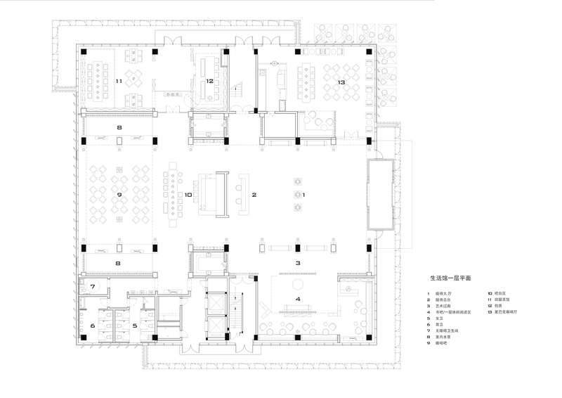
平面图
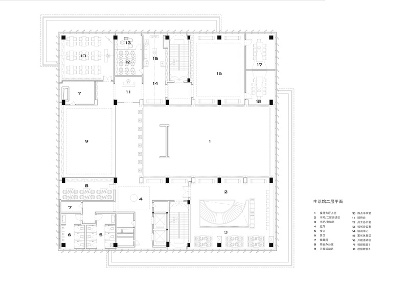
平面图
平面图
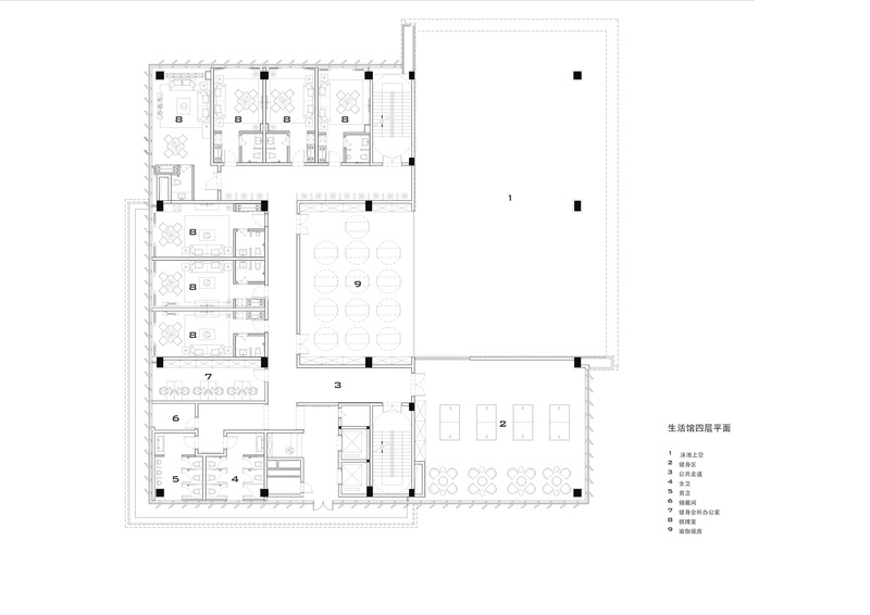
平面图
客服
消息
收藏
下载
最近












