查看完整案例

收藏

下载
打造静止中蕴含动态画面感,具有高辩识度,简洁、利落、高级感的采石矿机械设备展示空间。
Create a display space for mining and mining machinery and equipment that contains a sense of dynamic picture in stillness and has high recognition, simplicity, sharpness, and high-level sense.
使用被视为废料的石材荒料表面作为展示背景,荒料表面上留有的开采轨迹,完美展示了设备的工作状态。
The surface of the stone block that is regarded as waste material is used as a display background. The mining trajectory left on the surface of the block material perfectly shows the working status of the equipment.
石墙以其特有的角度将空间貌似自然随机分隔, 如山石于大山中的粗砺与无垠,创造出陌生的美感。
The stone wall separates the space seemingly natural and random with its unique angle. For example, the rock is rough and boundless in the mountains, creating a strange beauty.
而挑空处整齐排列的全封闭玻璃隔断,把一层与二层的声音隔离,有效减少不同空间相互干扰。
The neatly arranged fully enclosed glass partitions in the empty space separate the sound of the first and second floors, effectively reducing mutual interference in different spaces.
由于部份设备体量具大,将以全息投影配合3D打印等比缩小版模型替代原实物的方式展示,既减少成本投入,又增加体验感 。
Due to the large volume of some equipment, the original physical display will be replaced with a reduced-scale model such as holographic projection and 3D printing, which will reduce cost and increase experience.
再运用灯光等一系列设计手法,来访者仿佛置身于多维度开采现场。
Using a series of design techniques such as lighting, the visitor seems to be at a multi-dimensional mining site.
石头的耐久和厚实稳重呼应着企业文化
The durability and solidity of the stone echo the corporate culture.
相信会是一个高溢价的展示空间。
I believe it will be a high premium exhibition space.
入口
过道
在不同材料与灯光共同作用下产生的高级感
不同视觉表面的石材背景,不规则的立在属于它们的位置
虚实的对比
机械设备展示区——石组构成的微缩场景
灵活的自由动线
线条利落有力的楼梯
电梯前室密封的锯片
展示设备开采时留在荒料上的动运轨迹
矿山——设备及其工作现场
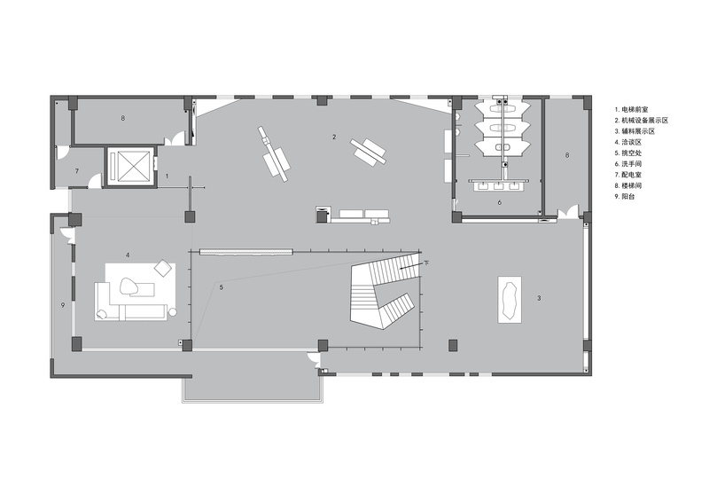
平面布置图
客服
消息
收藏
下载
最近














