查看完整案例

收藏

下载
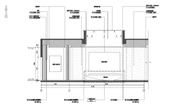
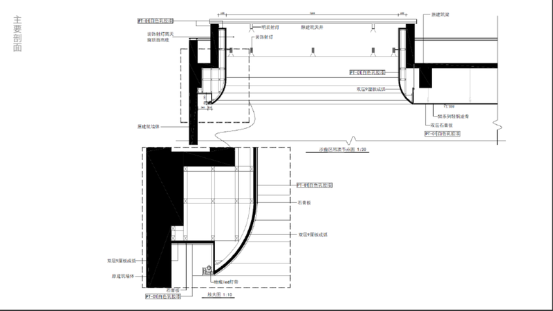
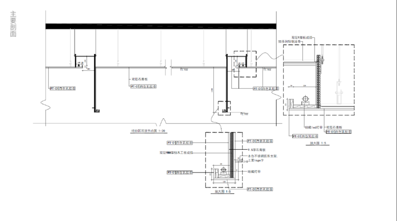
作者:熊涛。项目位于南京江北G01地块,为住宅售楼属性,总设计面积为287㎡,空间内容纳了接待区、洽谈区、展示区、办公区、卫生间、仓储等功能空间。空间内采光条件充分,且建筑有条件配合室内进行局部调整,室内围绕着天窗(沙盘区)为设计中心点,在展示区采用条状弧形墙面为设计元素,充分诠释了 “峡谷之光”的设计概念;内部还引入了illy咖啡的联名合作,也呼应了当下售楼类公共建筑的发展潮流。
该项目为地产类节奏较快的项目,从设计启动到竣工历时近3个月左右,节奏较快;设计主题为“峡谷之光”。因为售楼处为独立建筑,在室内设计过程中建筑还在施工阶段,室内提出了这一概念,进而与建筑默契配合,增加了屋顶的天窗,让光线有效的引入室内,结合室内弧形墙面,营造出契合“峡谷之光”的空间氛围感;空间整体色调偏明快舒适,使人在空间之中自然而然产生放松舒适的感受;另外空间还引入了illy咖啡,让空间更符合当下售楼功能的时尚潮流。同时也为以后的可持续性进行了延伸。
客服
消息
收藏
下载
最近



























