知末
知末
创作上传
VIP
收藏下载
登录 | 注册有礼
知末案例   /   家装空间   /   样板间

佛山龙光自在城E户型样板房设计亮点与实景鉴赏

2019/12/23 14:49:45
查看完整案例
微信扫一扫
收藏
下载
佛山龙光自在城E户型样板房设计亮点与实景鉴赏-0
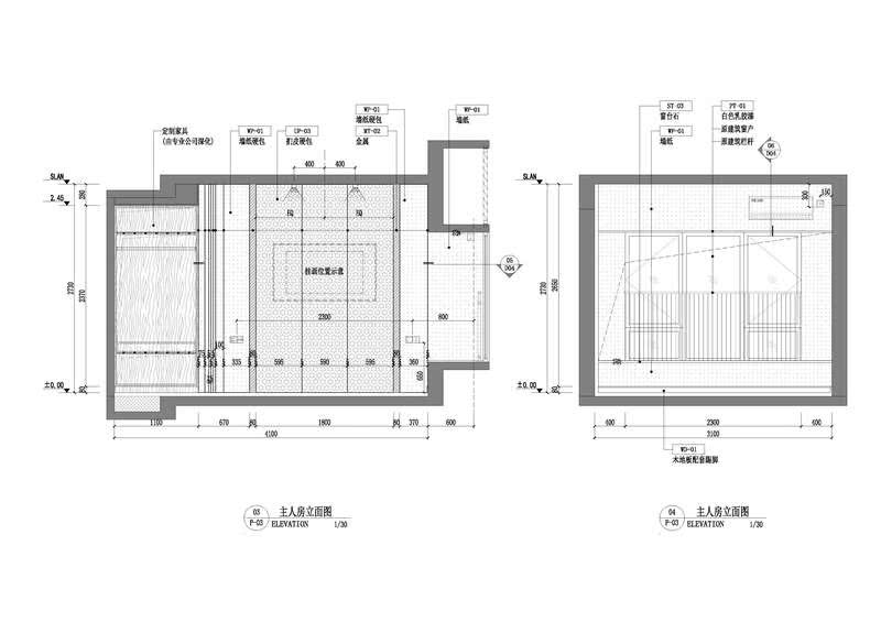
立面图
佛山龙光自在城E户型样板房设计亮点与实景鉴赏-2
立面图
佛山龙光自在城E户型样板房设计亮点与实景鉴赏-4
剖面图
佛山龙光自在城E户型样板房设计亮点与实景鉴赏-6
封面客厅实景图
佛山龙光自在城E户型样板房设计亮点与实景鉴赏-8
客厅实景图
佛山龙光自在城E户型样板房设计亮点与实景鉴赏-10
餐厅实景图
佛山龙光自在城E户型样板房设计亮点与实景鉴赏-12
主卧一实景图
佛山龙光自在城E户型样板房设计亮点与实景鉴赏-14
主卧二实景图
佛山龙光自在城E户型样板房设计亮点与实景鉴赏-16
主卧三实景图
佛山龙光自在城E户型样板房设计亮点与实景鉴赏-18
儿童房一实景图
佛山龙光自在城E户型样板房设计亮点与实景鉴赏-20
儿童房二实景图
佛山龙光自在城E户型样板房设计亮点与实景鉴赏-22
天花布置图
佛山龙光自在城E户型样板房设计亮点与实景鉴赏-24
平面布置图
南京喵熊网络科技有限公司 苏ICP备18050492号-4知末 © 2018—2020 . All photos and trademark graphics are copyrighted by their owners.增值电信业务经营许可证(ICP)苏B2-20201444苏公网安备 32011302321234号
客服
消息
收藏
下载
最近