查看完整案例

收藏

下载
摸不到的颜色 是否叫彩虹
看不到的拥抱 是否叫微风
那一年我们望着星空
那么多灿烂的梦
人生旅途中
即使面临黑夜
也有灿烂星空
简 约·永 恒
城市·生活·艺术,至精至简,美润温和。简洁利落的直线与曲线营造空间的自由与包容,矩形与圆柱让空间的刚与柔融合。一切都在曲直方圆之中,无不展现出精美考究的材质与冷暖和谐的色彩。
淡雅·至简
Simple and Elegant
在本案中,淡而雅,简而精。永恒的黑、白、红配色,考究得当的空间营造,让建筑的每一寸肌肤绽放着记忆中的美。
设计师以红色的装置摆件点缀,使整体空间的纵深感得以立体张扬。沉稳低调的大金属线条渲染出了空间强烈的张力与极致的内敛,形成丰富的区域变化,至简至美。
艺术·美学
Artistic and Aesthetic
建筑的美,就如同人体的美,没有一块肌肉不是具有自己的目的,没有一根线条是多余的,每一处细节都切合人的思想和人的生活。
通过不同材质之间的碰撞,在比例情绪和故事间平衡出无限的舒适,链接起空间的艺术性。
每一处的精致都满含着设计师的匠心独具,整体的美感打造也透露着设计师的美学修养。
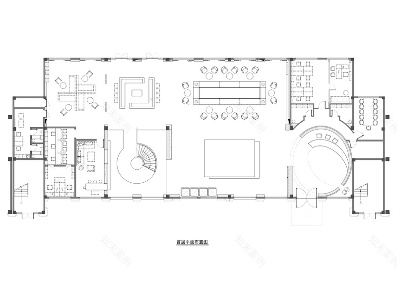
首层平面图
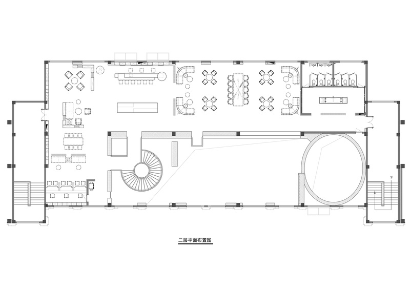
二层平面图
客服
消息
收藏
下载
最近































