查看完整案例

收藏

下载
项目名称:长沙星沙新城悦隽Loft样板房
项目地点:长沙
项目面积:约76㎡
风格定位——现代简约
设计说明:
伴随经济的发展和房价的日益高涨,人们对于住房的需求正形成鲜明的变化。年轻化、小型化的趋势下,如何在有限的空间尺度满足更丰富的生活需求成为市场的刚需。Loft 这种源自纽约的双侧复式结构,也以极强的可塑性和自主性成为年轻一代追逐的目标。刚需、手改、投资的80、90后年轻消费群体客户为主,设计主要在空间的色彩、人物定位功能区分强调标签、个人意志等方面对项目的两个户型做明显差异化的设计,于品质之内寻求生活的趣味性。定位于具有国际化视野的创一代年轻群体。
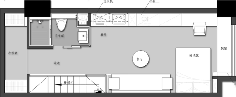
一层为客户群体为男生,90后,定位于本地区青年白领。兴趣比较广泛,喜欢机车和电子音乐,把符合时代生活节奏带入空间中。麻雀虽小五脏俱全,空间布局上有独立卫生间,衣帽间,厨房,餐厅吧台,卧室,客厅,一体化的电视柜和书桌表达出多功能用途。满足各种生活需求。在空间中多采用了符合生活的装饰配件,机车头盔,调音器,音响等,表达出居住人群的活力。打造符合设计师人群的审美特征的生活环境,餐厅酒吧氛围感的吊灯,弥补了复式结构一侧空间体量较大的空洞,也为空间注入了一丝艺术品质之感。
二层,主要针对追求实现自我价值的的女性自由职业者而设计打造。作为沉浸于服装的设计师人群,对生活情调与生活品质有着较高的要求。布局上有独立衣帽间和卫生间,开敞的卧室和客厅,厨房,功能齐全。色彩上空间整体采用了浪漫而随性的莫兰迪色为主要色彩表现,呼应了该户型的客群身份特征。营造出了充满灵活度与艺术感性的空间氛围。同时,精致的石材与金属衔接的茶几。富有艺术感的装饰画、摆件,与触感温柔的沙发、毛毯,适度伶俐如伊,适度温软如斯,共同拼凑出了一个属于新时代独立女性的“窝居”之家。
平面图
平面图1
客服
消息
收藏
下载
最近






















