查看完整案例

收藏

下载
深美茶餐厅(港式茶点的传承),本案设计主题是指港式茶餐厅,港式元素是本案设计里的灵魂,要让客人进来后有一个,或者多个的亮点,好像一部电影高潮部分可以有几段,但最终导演想给观众知道的是什么,寓意是什么,这才是最重要的。无论哪一种表现手法,都需要用文化来诠释设计的本意,通过巴士站,风情街,奶茶铺等设计符号的引入,把港式文化的重点突显出来,让客人有一种置身香港的感觉,80年代的报刊亭更是把这个文化传递表现的一览无余,通过文化的植入,让我们用心来体验港式氛围的那份轻松和文化沉淀!
设计师:张伟军
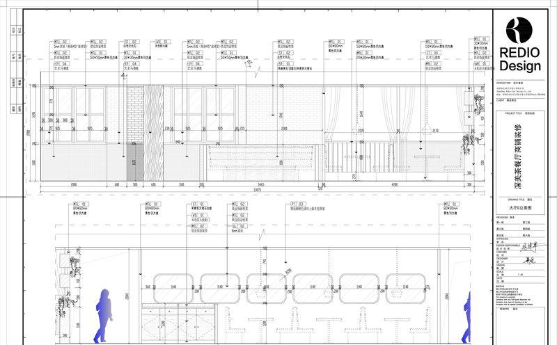
立面图-01
立面图-02
立面图-03
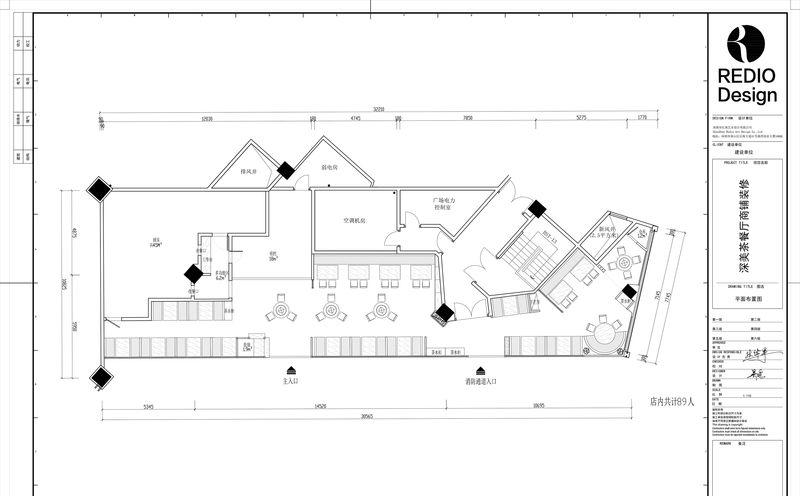
平面布置图
客服
消息
收藏
下载
最近


















