查看完整案例

收藏

下载
湛江阳光城售楼处设计理念
房子不只是居住的空间,更是承载美好生活和情感温度的容器,在这里,家人有更多的时间相互陪伴,邻里之间的情感也得到迅速的升温,在这里,我们回归家庭,记录美好,回忆生活的小确幸…… 本案无论是在整体的格局设计,还是细节的把控上,都透着一股温馨、雅致的气息,力图给人一种宾至如归的感觉。洽谈区地面铺设着黑白纹路的大理石,犹似文人在宣纸上的泼墨挥毫,凌乱不羁中隐藏着深远的意境。大幅的落地式玻璃幕墙,让整个房间更加空灵通透,深深浅浅的光线透过玻璃照进来,让人不禁沉入午后阳光的慵懒中。
Lijing Bay,Yango Group The house is not only a living space, but also a container for a good life and emotional temperature. Here, the family has more time to spend with each other, and the emotions between the neighborhoods are also rapidly warming up. Here, we return to the family and record the beauty. Recalling the small life of life... This case, in the overall pattern design, or the control of the details, reveals a warm, elegant atmosphere, trying to give people a feeling of being at home. The marble on the ground in the negotiation area is covered with black and white grain. It is like the literati's splashing ink on the white paper, which hides the far-reaching artistic conception. The large floor-standing glass curtain wall makes the whole room more ethereal and transparent. The deep and shallow light shines through the glass, and people can't help but sink into the lazy afternoon sun.
湛江阳光城售楼处照片6
湛江阳光城售楼处照片1
湛江阳光城售楼处照片2
湛江阳光城售楼处照片3
湛江阳光城售楼处照片4
湛江阳光城售楼处照片5
湛江阳光城售楼处照片7
湛江阳光城售楼处照片8
湛江阳光城售楼处照片9
湛江阳光城售楼处照片10
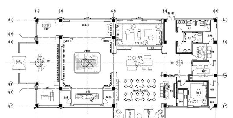
湛江阳光城售楼处,平面布置图1
湛江阳光城售楼处,平面布置图2
湛江阳光城售楼处,设计师黄全照片
客服
消息
收藏
下载
最近















